EasyManua.ls Logo

Varian ProStar - Page 34

Default Icon
46 pages
Print Icon
To Next Page IconTo Next Page
To Next Page IconTo Next Page
To Previous Page IconTo Previous Page
To Previous Page IconTo Previous Page
Loading...
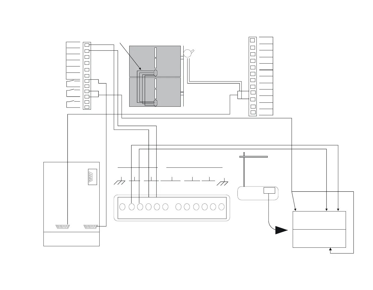
INJECT
ADVANCE
PEAK
A-GND
ANALOG
RACK
EVT MARK
+13VDC
GND
CHASSIS
OUTPUTS INPUTS
1 2 3 4 5
210/215/218 Pump (Master), 340 UV
Detector, and 420/430 AutoSampler
ProStar 701
Position sensing
switch of Rheodyne
manual injector is
connected to Start In
210/215/218 Pump
Sync cable for
ProStar 420/430
AutoSampler
0393516101
ProStar 340 UV-Detector
ProStar 420/430 AutoSampler
3
1
2
ANALOG
OUT GRD
INTGR 1
HI
INTGR 1
LOW
INTGR 1
GRD
CHASSIS
GRD
ANALOG
OUT
AUX
+5V
AUX
GND
STOP
D GRD
HOLD
D GRD
TRANSFER
D GRD
INJECT
D GRD
MARK
D GRD
Shielded cable
R007200141
Extension cable
R000815107
Shielded cable
R007200141
P4
MARKER
RELAY
P6
INPUTS
COM
PORT
+ - + -
+ - + -
RECORDER
INT
1AU/V
AUTO
ZERO
EVENT
OUTPUT REMOTE
1 2 3 4
5 6
+ -
Shielded cable
R007200141
Please refer to the
other detector
diagrams for
connection with
the other
AutoSamplers
NOTE:
Detail
34

Related product manuals