EasyManua.ls Logo

Vatech Green X18 - Page 139

Vatech Green X18
164 pages
Print Icon
To Next Page IconTo Next Page
To Next Page IconTo Next Page
To Previous Page IconTo Previous Page
To Previous Page IconTo Previous Page
Loading...
10. Technical Specifications
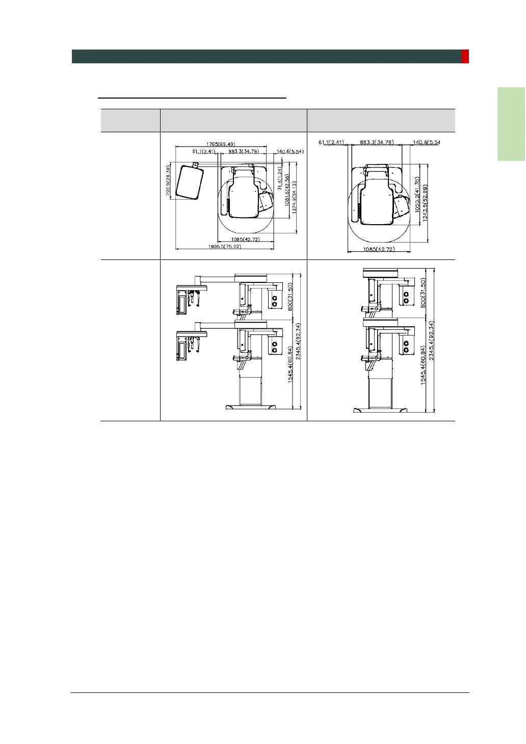
Green X / X18
(Model: PHT-75CHS) Installation Manual 131
English
Green X18: With Base (unit=mm (inch))
View With CEPH Without CEPH
Top
(With Base)
Front
(With Base)

Table of Contents

Related product manuals