EasyManua.ls Logo

Vatech Green X18 - Page 27

Vatech Green X18
164 pages
Print Icon
To Next Page IconTo Next Page
To Next Page IconTo Next Page
To Previous Page IconTo Previous Page
To Previous Page IconTo Previous Page
Loading...
2. Pre-Installation Requirement
Green X / X18
(Model: PHT-75CHS) Installation Manual 19
English
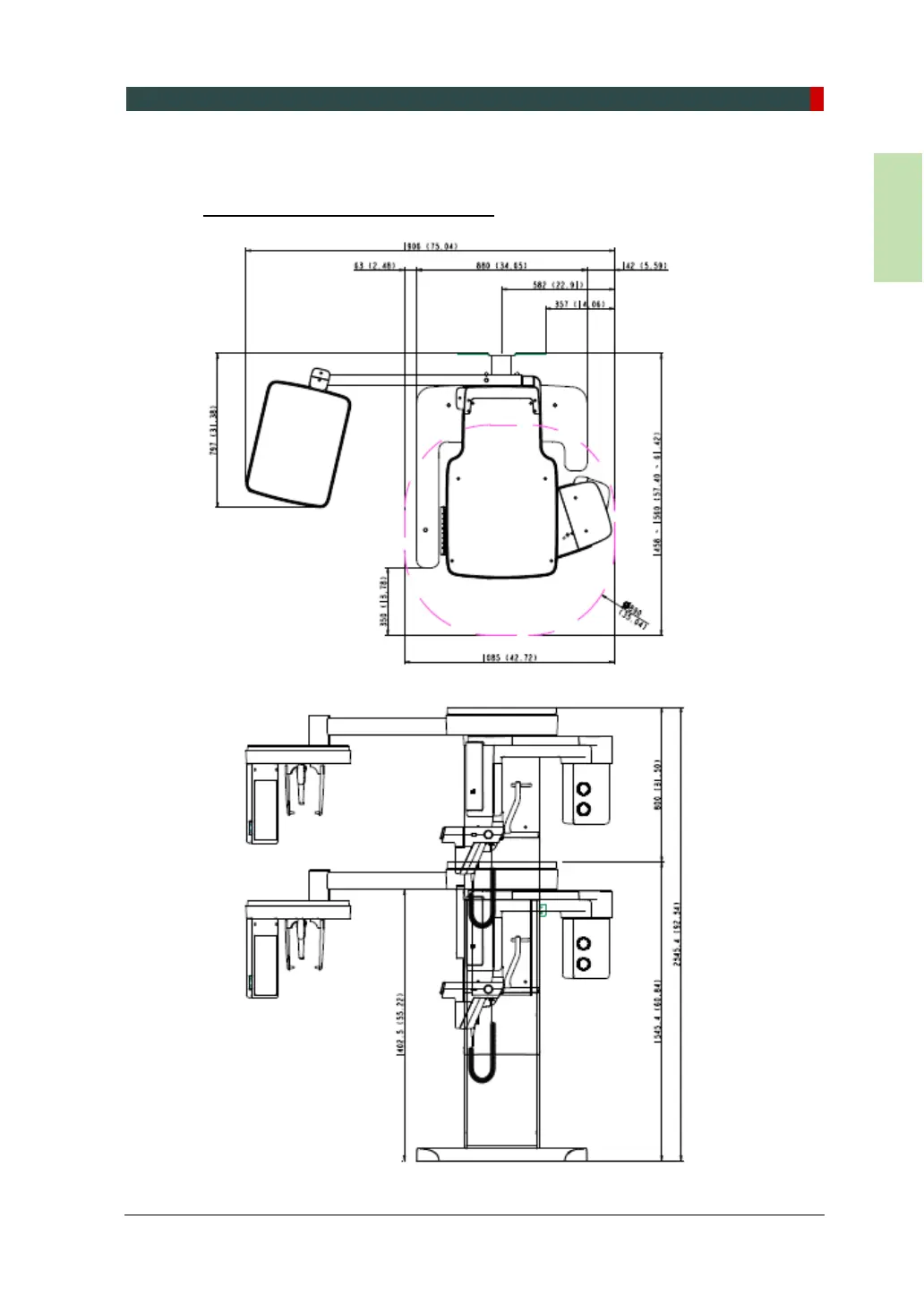
2.5.2 Green X18
Base Stand Type (With CEPH unit)

Table of Contents

Related product manuals