EasyManua.ls Logo

Ventis HEI170 - Dimensions

Ventis HEI170
52 pages
Print Icon
To Next Page IconTo Next Page
To Next Page IconTo Next Page
To Previous Page IconTo Previous Page
To Previous Page IconTo Previous Page
Loading...
Page 10
Installation and Operation Manual - HEI170
ENGLISH
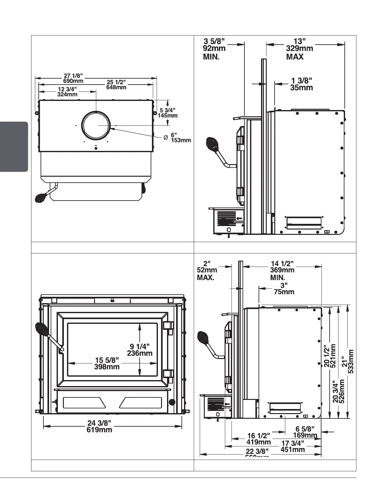
2.3 Dimensions
Top View Side View - Minimum Insert Projection
Front View Side View - Maximum Insert Projection

Table of Contents

Related product manuals