EasyManua.ls Logo

Vertical Express I-2 - Page 59

Vertical Express I-2
70 pages
Print Icon
To Next Page IconTo Next Page
To Next Page IconTo Next Page
To Previous Page IconTo Previous Page
To Previous Page IconTo Previous Page
Loading...
I-2 / I-3 Valve Reference Material
August 2019 - 89130 v.3.0 57
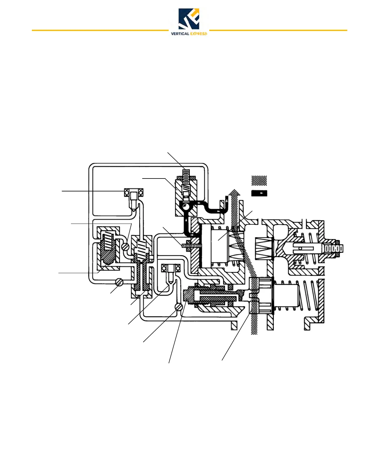
Sequence of Events
(continued)
High-pressure Relief 1. The oil is transmitted to the high-pressure pilot. See Figure 8.
2. The movement allows the oil in back of the regulator piston and at the high-pressure
adjustment to escape to the tank.
3. The regulator piston moves rapidly to the low-pressure stud, allows full bypass from
the pump to the tank, and relieves the excess pressure.
4. The system maintains relief pressure as long as the pump continues to run.
Figure 8 - High-Pressure Relief Diagram
TANK
MAIN FLOW
CONTROL FLOW
Relief Pressure Adjustment Screw
High-Pressure
Relief Pilot
Up Slow Solenoid
(Closed)
Up Slowdown
Adjustment
Pressure Control
Piston
Up Stop Adjustment
Up Pilot Piston
Up Fast Solenoid (Open)
Up Start Adjustment
Up Leveling Speed Adjustment
Check Valve Piston
PUMP JACK
Regulator Piston
Low
Pressure
Adjustment