EasyManua.ls Logo

Vestil LLW - Product Specifications; LLW-FW, ALLW-FW, & ALLW-2020-FWFL Specifications; LLW-4 SFL & ALLW-4 SFL Specifications

Vestil LLW
21 pages
Print Icon
To Next Page IconTo Next Page
To Next Page IconTo Next Page
To Previous Page IconTo Previous Page
To Previous Page IconTo Previous Page
Loading...
Table of Contents Rev. 10/2/2020 LLW MANUAL
Table of Contents Copyright 2020 Vestil Manufacturing Co. Page 2 of 21
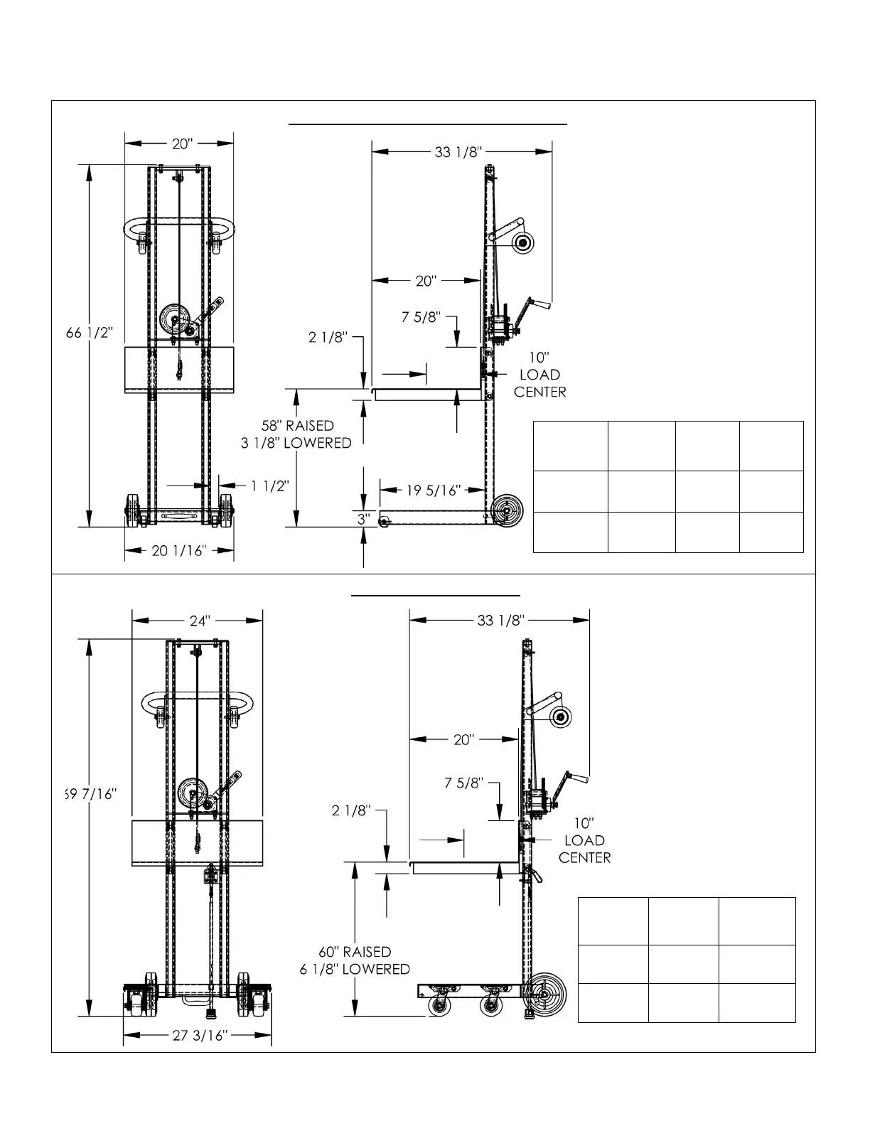
SPECIFICATIONS
Dimensions, net weight, and capacity information for standard models appear in the diagrams and tables.
MODEL
LLW-
242060-
4SFL
ALLW-
2420-4SFL
Net
weight
192 lb.
87.0 kg
127 lb.
57.7 kg
Capacity
500 lb.
227.3 kg
400 lb.
181.8 kg
MODEL
LLW-
202058-
FW
ALLW-
2020-
FW
ALL-
2020-
FWFL
Net
weight
131 lb.
59.3 kg
84 lb.
38.2 kg
86 lb.
39.1kg
Capacity
500 lb.
227.3 kg
400 lb.
181.8 kg
400 lb.
181.8 kg
10”
LLW-FW; ALLW-FW; & ALLW-2020-FWFL
LLW-4SFL & ALLW-4SFL

Related product manuals