EasyManua.ls Logo

Victoria Arduino WHITE EAGLE VA358 - Page 101

Victoria Arduino WHITE EAGLE VA358
116 pages
Go to English
Print Icon
To Next Page IconTo Next Page
To Next Page IconTo Next Page
To Previous Page IconTo Previous Page
To Previous Page IconTo Previous Page
Loading...
101
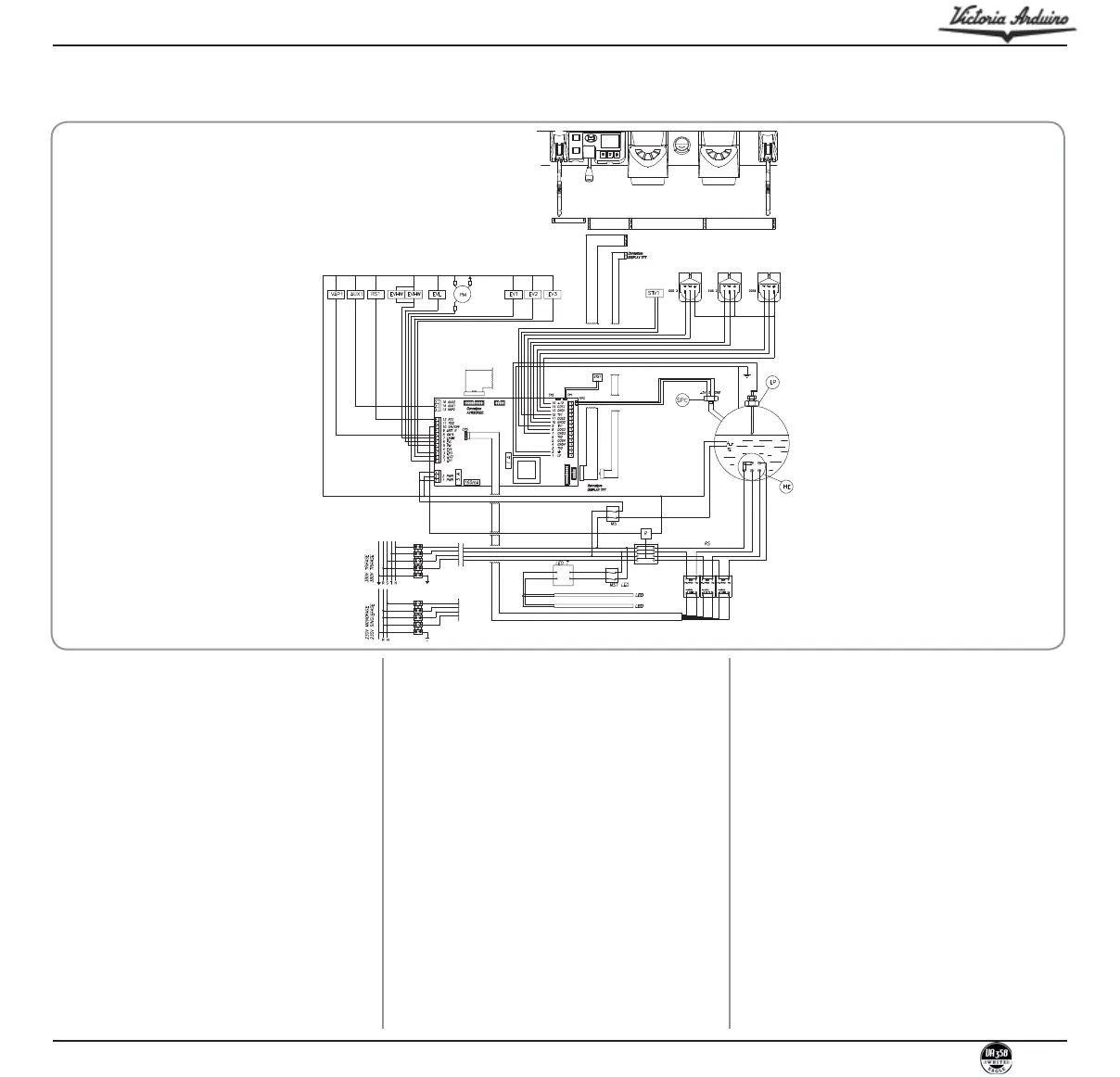
LEGENDA / KEY / LÉGENDE
MS Interruttore / Switch / Interrupteur.
R Relè / Relay / Relais.
RS Relè statico / Relay / Relais.
PM Motore pompa / Pump Motor / Moteur
pompe.
HE Resistenza boiler / Boiler heater ele-
ment / Résistance chaudiere.
LP
Sonda livello / Level probe / Sonde niveau.
EV1 Elettrovalvola gruppo 1 / Electrovalve
group 1 / Electrovanne groupe 1.
EV2 Elettrovalvola gruppo 2 / Electrovalve
group 2 / Electrovanne groupe 2.
EV3 Elettrovalvola gruppo 3 / Electrovalve
group 3 / Electrovanne groupe 3.
EV4 Elettrovalvola gruppo 4 / Electrovalve
group 4 / Electrovanne groupe 4.
TE Termostato / Thermostat / Thermostat.
EVHW Elettrovalvola miscelatore / Mixer elec-
trovalve / Electrovanne mélangeur.
P
Pressostato / Pressure switch / Pressostat.
EVS Elettrovalvola sfiato / Vacuum electro-
valve / Electrovanne vide.
RS1 Resistenza scaldatazze 1 / Cupwarmer
heating element 1 / Résistance chauffe
tasses 1.
RS2 Resistenza scaldatazze 2 / Cupwarmer
heating element 2 / Résistance chauffe
tasses 2.
ST1 Sonda temperatura scaldatazze 1 /
Cupwarmer temperature probe 1 /
Sonde température chauffe-tasses 1.
ST2 Sonda temperatura scaldatazze 2 /
Cupwarmer temperature probe 2 /
Sonde température chauffe-tasses 2.
SPC Sensore pressione caldaia / Boiler
pressure sensor / Capteur pression
chaudière.
CRS Connettore relè statici / Static relays
connector / Connecteur relais stati-
ques.
EVL Elettrovalvola livello / Water level elec /
/ Electrovanne niveau.
STS1 Sonda temperatura scaldatazze 1 /
Cupwarmer temperature probe 1 /
Sonde température chauffe-tasses 1.
STS2 Sonda temperatura scaldatazze 2 /
Cupwarmer temperature probe 2 /
Sonde température chauffe-tasses 2.
LED Opzionale / optional / optionnel.
MS1 Interruttore LED (opzionale) / Switch
LED (optional) / Commutateur LED
(optionnel).
LED T Trasformatore LED (opzionale) /
Transformer LED (optional) /
Transformateur LED (optionnel).
IMPIANTO ELETTRICO / ELECTRIC SYSTEM / INSTALLATION ÉLECTRIQUE
VA358 WHITE EAGLE DIGIT

Table of Contents

Related product manuals