EasyManua.ls Logo

Viessmann BWC 201.B - Sheet 1 A: Compressor 230 V; Sheet 2: Heat Pump Control Unit Power Supply 230 V

Viessmann BWC 201.B
20 pages
Print Icon
To Next Page IconTo Next Page
To Next Page IconTo Next Page
To Previous Page IconTo Previous Page
To Previous Page IconTo Previous Page
Loading...
8
B
A
2a.6
4.5
2a.2
2a.5
C
D
E
F
G
H
K
L
0 1
2 3 4
5 6 7
8 9
0 1
2 3 4
5 6 7
8 9
viesmann
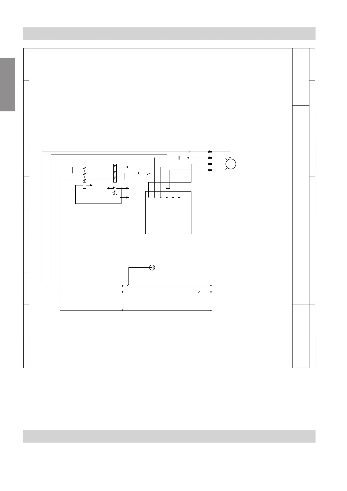
Compressor 230 V
Sheet 1a
M
3~
~
-X41
L1 N PE
L1 N PE
1
-PE1
C R S PE
-M1
1
2
3
4
5
6
1
2
3
4
5
6
A1
A2
Q1
95
96
F4
x1
x2
-C1
R
RC
L
N
Uc
S
13
14
-K1
1
2
-F6
1
X11
2 3 7
-N
-PE
1/N/PE
230 V/50 Hz
Fig. 2
A
Compressor power supply
B
Mains terminals, compressor
C
Compressor contactor
D
Thermal relay, compressor
E
Fuse, control circuit of full wave soft starter
F
Relay, control circuit of full wave soft starter
G
Full wave soft starter
H
Run capacitor
K
Male jack, compressor
L
Compressor motor
Sheet 2: Heat pump control unit power supply 230 V~
For heat pumps with 400 V~ compressor
Connection and wiring diagram
Sheet 1a: Compressor 230 V~
6152053
Service

Related product manuals