EasyManua.ls Logo

Viessmann Vitocell 100-L - Vitocell 100-H and Vitocell 300-H up to 200 L Capacity; Vitocell 300-H, from 350 L Capacity

Viessmann Vitocell 100-L
56 pages
Print Icon
To Next Page IconTo Next Page
To Next Page IconTo Next Page
To Previous Page IconTo Previous Page
To Previous Page IconTo Previous Page
Loading...
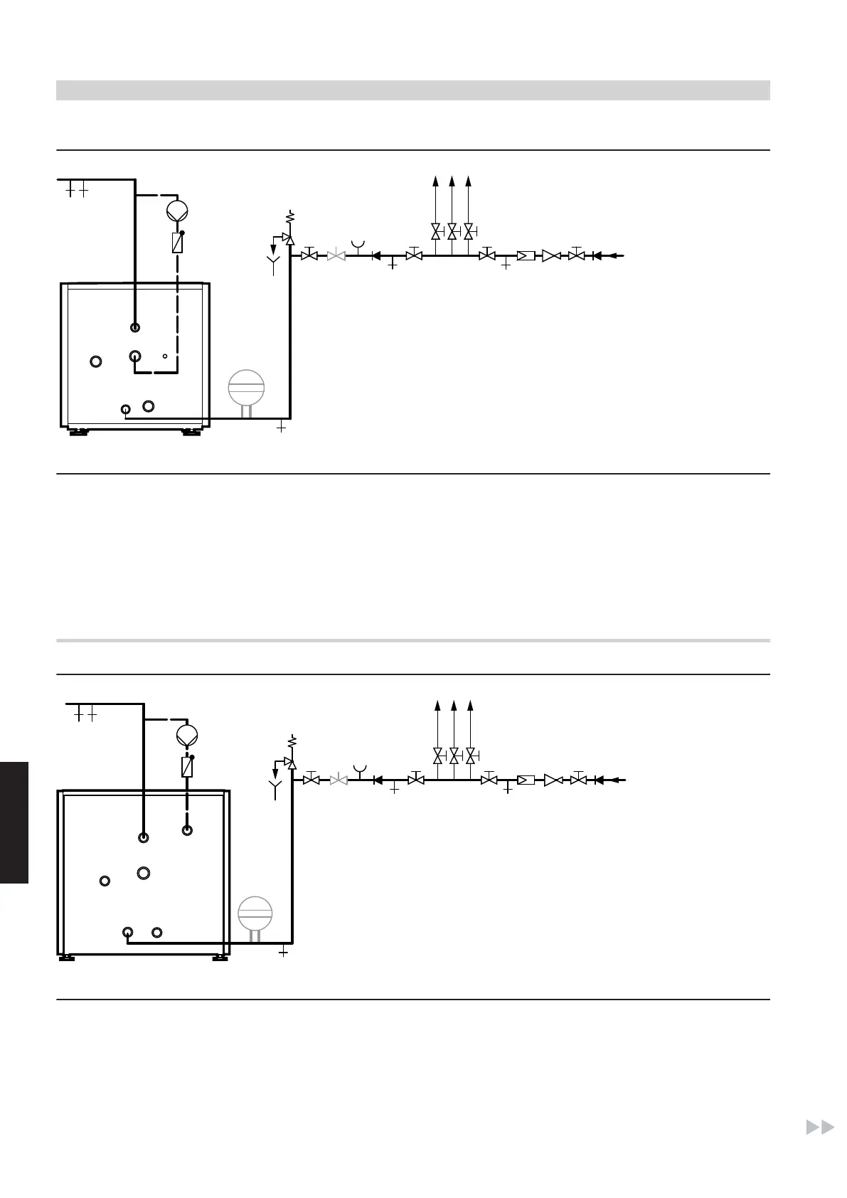
Vitocell 100-H and Vitocell 300-H up to 200 l capacity
A
B
C
D
E
F
G
H
K
L
M
N
O
P
R
M
G
G
M
G
N
S
Connection on the DHW side to DIN 1988
A
DHW
B
DHW circulation pipe
C
DHW circulation pump
D
Spring-loaded check valve
E
Visible discharge pipe outlet point (tundish)
F
Safety valve
G
Shut-off valve
H
Flow regulating valve
K
Pressure gauge connection
L
Non-return valve
M
Drain
N
Cold water
O
Drinking water filter
P
Pressure reducer
R
Non-return valve/pipe separator
S
Diaphragm expansion vessel, suitable for potable water
Vitocell 300-H, from 350 l capacity
A
B
C
D
E
F
G
H
K
L
M
N
O
P
R
M
G
G
M
G
N
S
Connection on the DHW side to DIN 1988
A
DHW
B
DHW circulation pipe
C
DHW circulation pump
D
Spring-loaded check valve
E
Visible discharge pipe outlet point (tundish)
F
Safety valve
G
Shut-off valve
H
Flow regulating valve
K
Pressure gauge connection
L
Non-return valve
M
Drain
N
Cold water
O
Drinking water filter
P
Pressure reducer
Installation — DHW cylinders
(cont.)
34
VIESMANN
DHW heating
6
5414646

Table of Contents