EasyManua.ls Logo

Viessmann VITOGAS 050 - Page 44

Viessmann VITOGAS 050
52 pages
Print Icon
To Next Page IconTo Next Page
To Next Page IconTo Next Page
To Previous Page IconTo Previous Page
To Previous Page IconTo Previous Page
Loading...
Additional Information
44
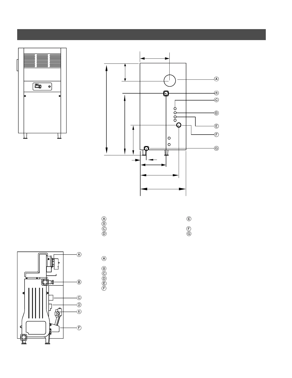
Technical Data
Legend
Vent connection, Ø 3” / 76 mm
Boiler water supply, 1¼” / 32 mm
120V power in
120V outlet for pump
(max. 4 Amp.)
Legend
Built-in power v enter for s idewall
venting
Boiler well for capilleries
Transformer
Ignition control
24V gas valve
Burner manifold
24V thermostat
0.9A anticipator s etting
Gas connection, ½” / 13 mm
Boiler water return, 1¼” / 32 mm
C
F
Front view
Fig. 20
5167 450 v1.4
Fig. 22
12½” /
320 mm
19¾” / 502 mm
17½” / 445 mm
11” / 279 mm
2¾” / 72 mm
41¾” / 1060 mm
12¼” / 310 mm
26” / 660 mm
10½” /
265 mm
Fig. 21

Other manuals for Viessmann VITOGAS 050

Related product manuals