EasyManua.ls Logo

Viking Range VCBB363 - Page 20

Viking Range VCBB363
36 pages
Print Icon
To Next Page IconTo Next Page
To Next Page IconTo Next Page
To Previous Page IconTo Previous Page
To Previous Page IconTo Previous Page
Loading...
20
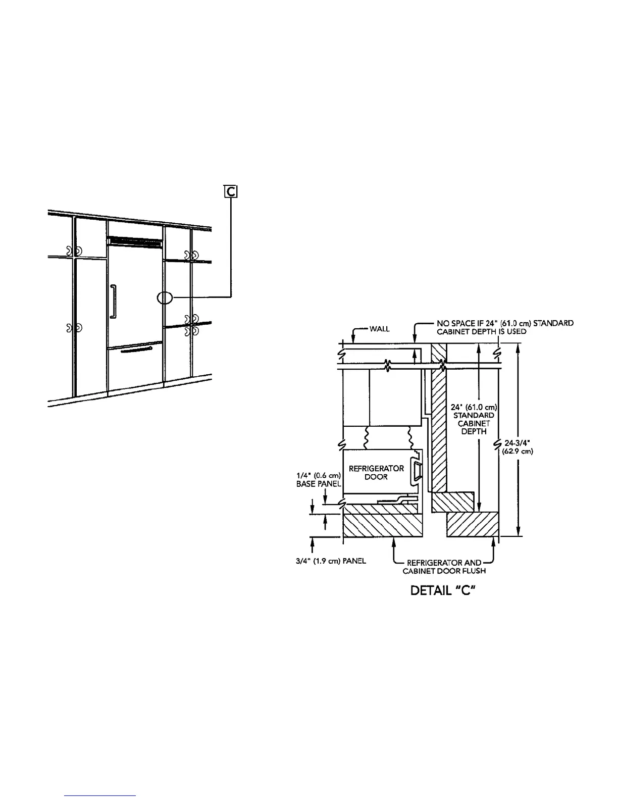
CABINET AND PANEL INFORMATION - FULL OVERLAY MODELS (Cont’d)
Full overlay models can be installed in standard 24” (61.0 cm) deep openings. However, the door faces and top ventilation grille
will protrude 3/4” (1.9 cm) into the room. This is ideal for alignment with full overlay cabinet doors.

Related product manuals