EasyManua.ls Logo

Viking DFSB423D - CABINET AND PANEL INFORMATION - DESIGNER MODELS

Viking DFSB423D
41 pages
Print Icon
To Next Page IconTo Next Page
To Next Page IconTo Next Page
To Previous Page IconTo Previous Page
To Previous Page IconTo Previous Page
Loading...
18
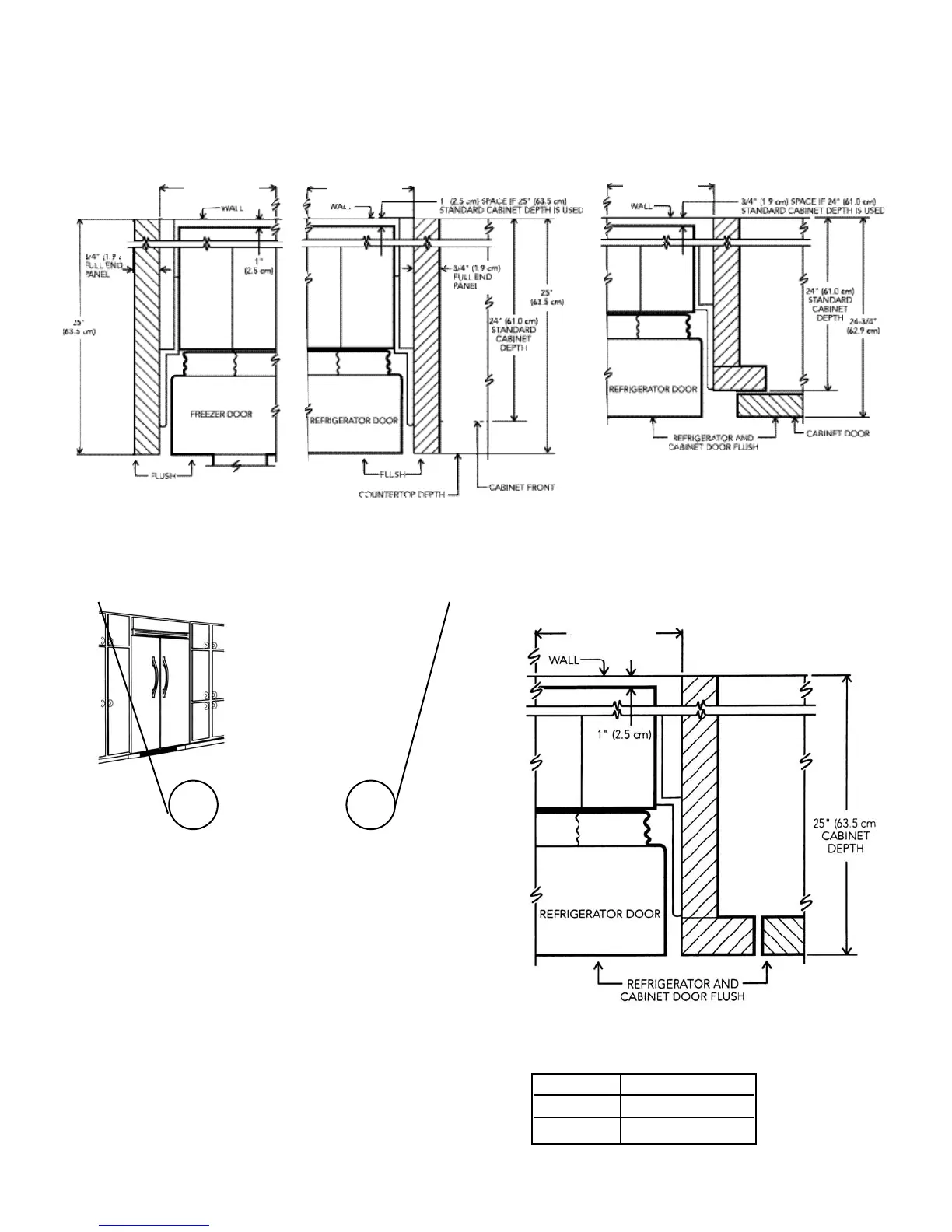
CABINET AND PANEL INFORMATION - DESIGNER MODELS
Designer models fit flush in standard 24” (61.0 cm) deep cabinet openings with no protrusion into the room except 2”
(5.1 cm) curved handle depth
DÉTAIL A-A DÉTAIL B-B
DÉTAIL A-A DÉTAIL B-B
WITH ADJACENT CABINETS;
OVERLAPPING CABINET DOORS
WITH ADJACENT CABINETS;
FLUSH MOUNT CABINET DOORS
AA
AA
AA
AA
AA
42" W 42"(106.7 cm)
48" W 48"(121.9 cm)

Other manuals for Viking DFSB423D

Related product manuals