EasyManua.ls Logo

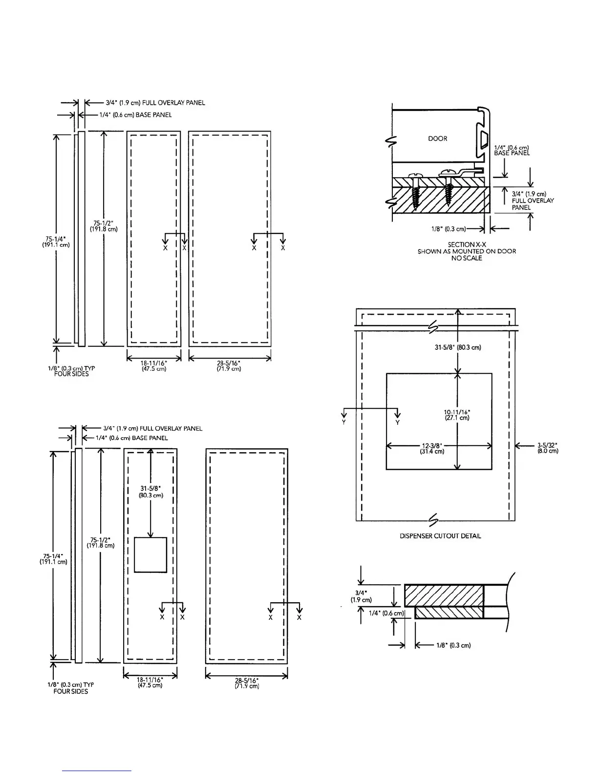
Viking DFSB423D - CUSTOM DOOR PANEL DIMENSIONS - FULL OVERLAY MODELS (48 W. MODELS)

Viking DFSB423D
41 pages
Print Icon
To Next Page IconTo Next Page
To Next Page IconTo Next Page
To Previous Page IconTo Previous Page
To Previous Page IconTo Previous Page
Loading...
23
SSEECCTTIIOONN YY--YY
NNOO SSCCAALLEE
48” W. MODELS
Non-Dispenser Models
CUSTOM DOOR PANEL DIMENSIONS - FULL OVERLAY MODELS
DDiissppeennsseerr MMooddeell

Other manuals for Viking DFSB423D

Related product manuals