EasyManua.ls Logo

Viking VBUI5150 - Page 27

Viking VBUI5150
60 pages
Print Icon
To Next Page IconTo Next Page
To Next Page IconTo Next Page
To Previous Page IconTo Previous Page
To Previous Page IconTo Previous Page
Loading...
7-FR
"D"
"E"
"F"
"G"
"H"
"J"
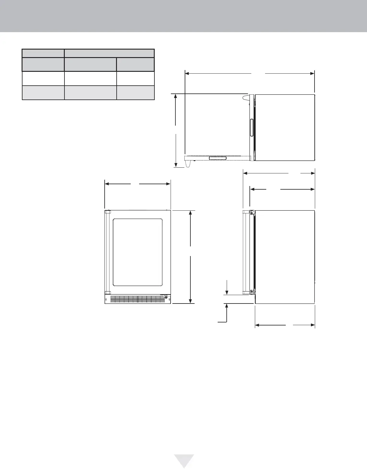
DONNÉES DE PRODUIT
MODÈLE
BESOINS
ÉLECTRIQUES #
POIDS DU
PRODUIT
VBUI5150 115V/60Hz/15A
105 lb
(47.6 kg)
VRUI5240
VBUI5240
115V/60Hz/15A
140 lb
(63.6 kg)
3
1
2 po (8.9 cm)
Minimum
Figure 9
21
1
2 po
(54.6 cm)
# Un circuit secteur dédié avec liaison de terre
supportant 15 A est nécessaire. Appliquez
toutes les normes de construction locales à
l’installation de l’électricité et de l’appareil.
DIMENSIONS DU PRODUIT

Table of Contents

Other manuals for Viking VBUI5150

Related product manuals