EasyManua.ls Logo

Viking VBUI5150 - Page 7

Viking VBUI5150
60 pages
Print Icon
To Next Page IconTo Next Page
To Next Page IconTo Next Page
To Previous Page IconTo Previous Page
To Previous Page IconTo Previous Page
Loading...
7
"D"
"E"
"F"
"G"
"H"
"J"
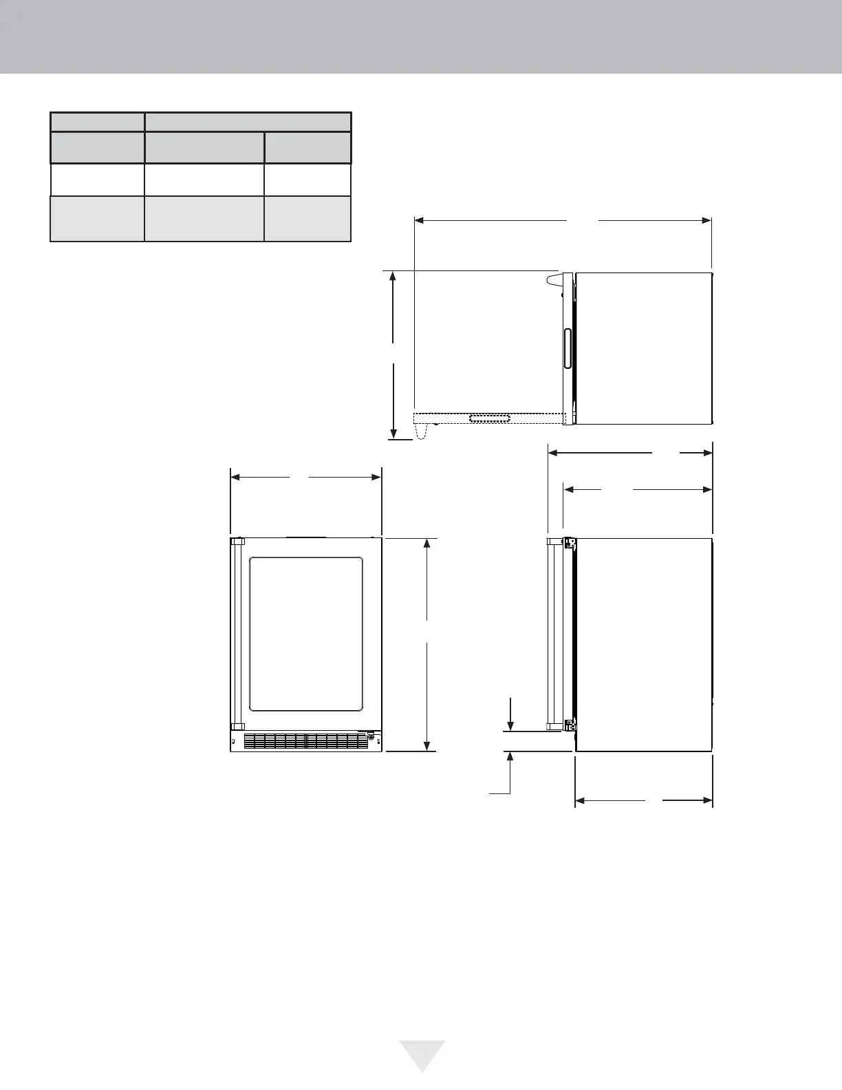
PRODUCT DIMENSIONS
PRODUCT DATA
MODEL
ELECTRICAL
REQUIREMENTS #
PRODUCT
WEIGHT
VBUI5150
115V/60HZ/15A
105 lbs
(47.6 kg)
VRUI5240
VBUI5240 115V/60Hz/15A
140 lbs
(63.6 kg)
3
1
2" (8.9 cm)
Minimum
Figure 9
21
1
2"
(54.6 cm)
# A grounded 15 amp dedicated circuit is required.
Follow all local building codes when installing
electrical and appliance.

Table of Contents

Other manuals for Viking VBUI5150

Related product manuals