EasyManua.ls Logo

Viking VWUI5151G - Page 8

Viking VWUI5151G
16 pages
Print Icon
To Next Page IconTo Next Page
To Next Page IconTo Next Page
To Previous Page IconTo Previous Page
To Previous Page IconTo Previous Page
Loading...
8
"D"
"E"
"F"
"G"
"H"
"J"
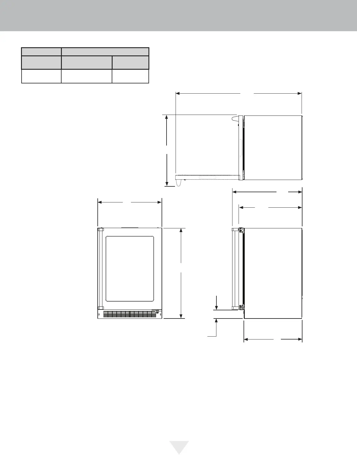
PRODUCT DIMENSIONS
PRODUCT DATA
MODEL
ELECTRICAL
REQUIREMENTS #
PRODUCT
WEIGHT
VWUI5151
115V/60HZ/15A
105 lbs
(47.6 kg)
3
1
2" (8.9 cm)
Minimum
Figure 12
21
1
2"
(54.6 cm)
# A grounded 15 amp dedicated circuit is required.
Follow all local building codes when installing
electrical and appliance.

Related product manuals