EasyManua.ls Logo

Viper TC-3 - Electrical Preparation

Viper TC-3
22 pages
Print Icon
To Next Page IconTo Next Page
To Next Page IconTo Next Page
To Previous Page IconTo Previous Page
To Previous Page IconTo Previous Page
Loading...
Residential Sliding Gate
Operator
14
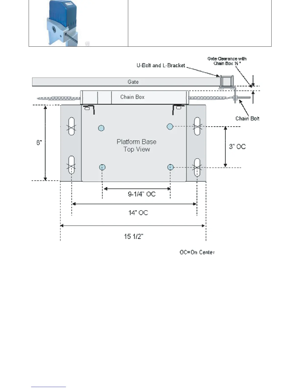
Figure 1, Platform Base Dimensions
Electrical Preparation
Install a suitable electrical outlet box that will be used to supply power to the
Operator. This box should be located near the operator, approx. 24” from the platform,
and out of the path of the gate. Wire size should be 12 gauge two conductor wires with a
Ground and protected by a Ground Fault Circuit Interrupt (GFCI). This can be achieved
by using a GFCI receptacle outlet and connecting the Gate Opener to the LOAD terminal
of the outlet.
If using electrical PVC Water Tight Conduit, See Figure 5, measure a sufficient length of
wire to reach from the Electrical box through the Platform Base hole and 24” inches past
the conduit fitting. This will allow enough wire to feed the wire up into the Operator and
connect to the Circuit Board. Do not connect the cable at this time.

Related product manuals