EasyManua.ls Logo

Voltacon 4KVA - AC and PV Connections; AC Input Connection

Voltacon 4KVA
14 pages
Print Icon
To Next Page IconTo Next Page
To Next Page IconTo Next Page
To Previous Page IconTo Previous Page
To Previous Page IconTo Previous Page
Loading...
5
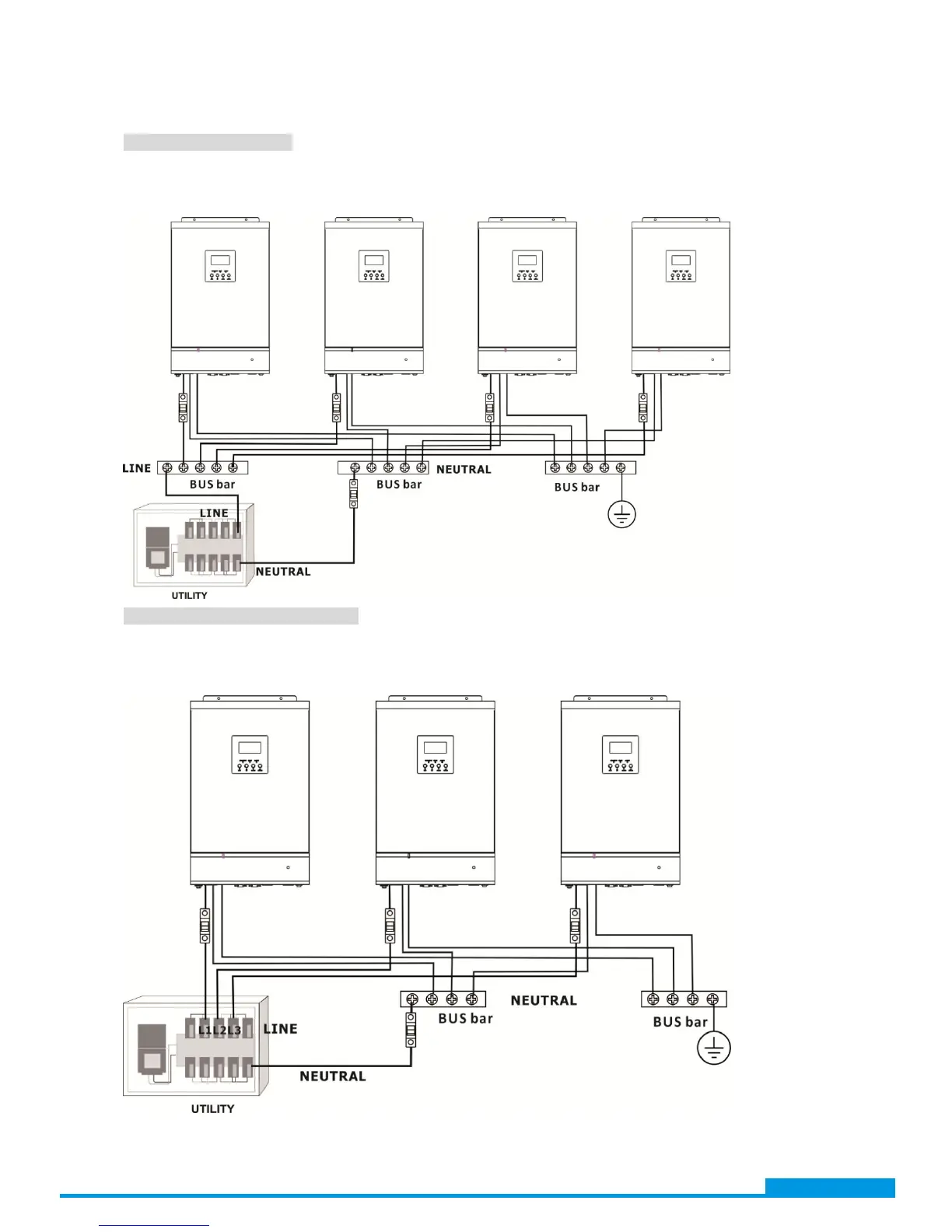
6. AC Input Connection
Parallel in single phase
Connect Line wires of AC input from each unit to Line BUS bar. Connect Neutral wires of AC input from each
unit to Neutral BUS bar. Refer to below figure for connection of AC input.
Support three-phase equipment
Connect Line wires of the inverter to each phase of the utility. Connect Neutral wires of AC input from each unit
to Neutral BUS bar. Refer to below figure for connection of AC input.
Breaker
Breaker
Breaker
www.voltacon.com
info@voltacon.com

Related product manuals