EasyManua.ls Logo

Volvo EC20E - Page 88

Volvo EC20E
238 pages
Print Icon
To Next Page IconTo Next Page
To Next Page IconTo Next Page
To Previous Page IconTo Previous Page
To Previous Page IconTo Previous Page
Loading...
3 Position dipper arm, boom and blade as shown
in the illustration.
4 Close and lock windows, doors and hoods
securely.
5 Shut off the engine and put the control lockout
lever fully in the upper end position.
6 Make sure that nobody is in the machine while
lifting.
7 Use suitable lifting equipment to lift the machine.
Make sure that the lifting chains are strong
enough for the weight of the machine. For
machine weight, see page
199
.
NOTE!
Beware of interference between tying material (e.g.
chains) and machine parts. Volvo is not responsible
neither for lifting equipment nor for lifting
techniques.
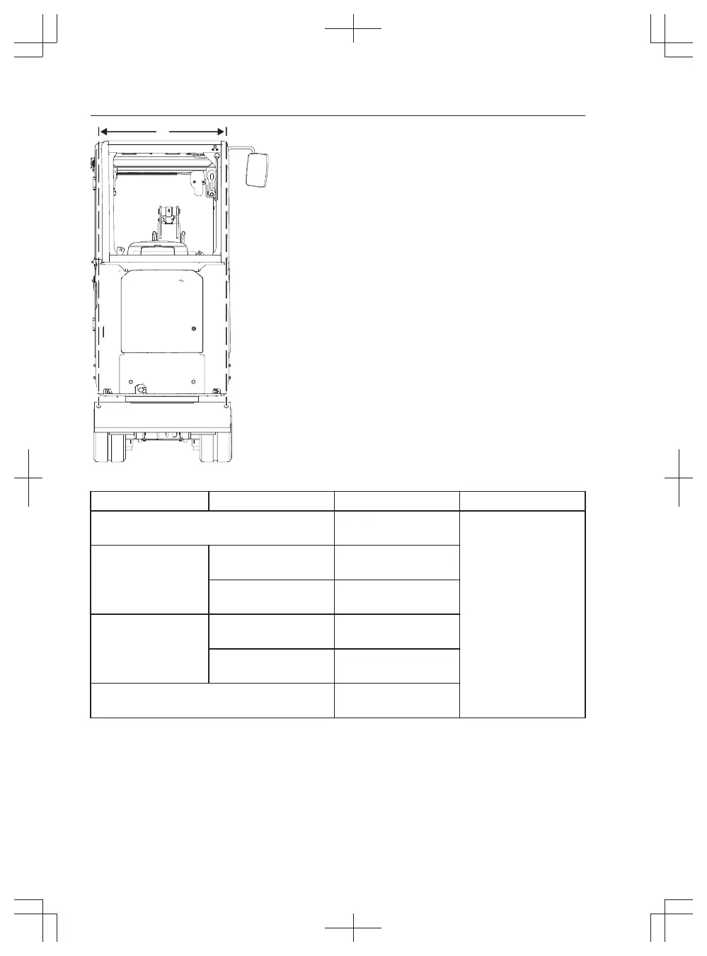
8 The distance (C) between axis A (lifting points
on boom) and B (lifting points on blade) and
distance (D, lifting points on blade) must be
observed when lifting.
mm (in) blade C D
EC15E
1633
(64.29)
930
(36.61)
EC18E
short
1683
(66.26)
long
1863
(73.35)
ECR18E
short
1803 mm
(70.98)
long
1983
(78.07)
EC20E
1753
(69.02)
9 Maintain good visibility of the machine at all
times during the lift.
D
V1199826
Distance D
86
Operating instructions
Transporting machine

Table of Contents

Related product manuals