EasyManua.ls Logo

Volvo EC480E - Page 150

Volvo EC480E
462 pages
Print Icon
To Next Page IconTo Next Page
To Next Page IconTo Next Page
To Previous Page IconTo Previous Page
To Previous Page IconTo Previous Page
Loading...
$$FKWHUXLWULMFDPHUD
'HPDFKLQHKHHIWWDOYDQIXQFWLHVYRRUGHPDFKLQLVW
RPGHULVLFRಬVYDQHHQVOHFKW]LFKWWRWKHWPLQLPXP
WHEHSHUNHQ%LMJHEUXLNYDQGH]HIXQFWLHVGLHQWGH
PDFKLQLVWDOWLMGHHQJRHG]LFKWWHKRXGHQRSGH
RPJHYLQJURQGGHPDFKLQH
6SLHJHOV
$FKWHUXLWULMFDPHUD
=LMFDPHUDH[WUD
230(5.,1*
$OOHDDQSDVVLQJHQDDQGHPDFKLQHGLHYDQLQYORHG
]LMQRSKHW]LFKWYDQGHPDFKLQLVWGLHQHQWHZRUGHQ
JHFRQWUROHHUGGRRUHHQ9ROYRGHDOHU
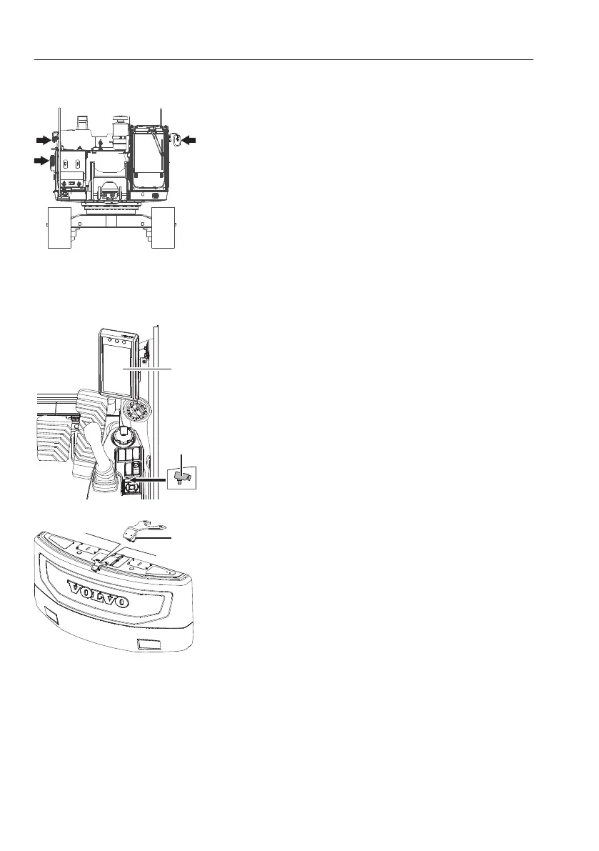
$FKWHUXLWULMFDPHUD
8NXQWKHWJHELHGDFKWHUGHPDFKLQHRSKHW
LQVWUXPHQWHQSDQHHOFRPELLQVWUXPHQW$
ZHHUJHYHQGRRUWRHWV%RSKHWWRHWVHQEORNLQWH
GUXNNHQ
%LMLQVFKDNHOLQJYDQGHDFKWHUXLWULMFDPHUDZRUGWKHW
JHKHOHVFKHUPYDQKHWLQVWUXPHQWHQSDQHHOFRPEL
LQVWUXPHQWJHEUXLNWRPGHYLGHREHHOGHQYDQGH
DFKWHUXLWULMFDPHUDZHHUWHJHYHQ
9
9
&
$
%
$ ,QVWUXPHQWHQSDQHHOFRPEL
LQVWUXPHQW
% 7RHWVYRRUDFKWHUXLWULMFDPHUD
& $FKWHUXLWULMFDPHUD

2YHULJHEHGLHQLQJVHOHPHQWHQ
%HVWXXUGHUVFRPIRUW

Related product manuals