EasyManua.ls Logo

W'eau WFI-007 - Installation of the Unit; Installation Diagram; Recommended Installation Space

W'eau WFI-007
32 pages
Print Icon
To Next Page IconTo Next Page
To Next Page IconTo Next Page
To Previous Page IconTo Previous Page
To Previous Page IconTo Previous Page
Loading...
- 5 -
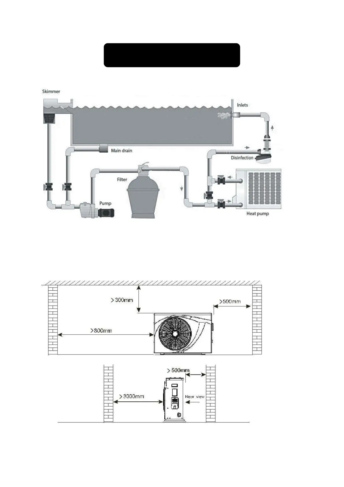
3. Installation of the unit
3.1 Installation Illustration
Above illustration is just for the reference, please take the advice of authorized installers.
3.2 Advised installation space
Keep the following indicated space for operation and maintenance when make the installation.

Related product manuals