EasyManua.ls Logo

Wacker Neuson G 70 - Wiring Diagram

Wacker Neuson G 70
92 pages
Print Icon
To Next Page IconTo Next Page
To Next Page IconTo Next Page
To Previous Page IconTo Previous Page
To Previous Page IconTo Previous Page
Loading...
Factory-Installed Options Mobile Generators
wc_tx000380gb.fm 82
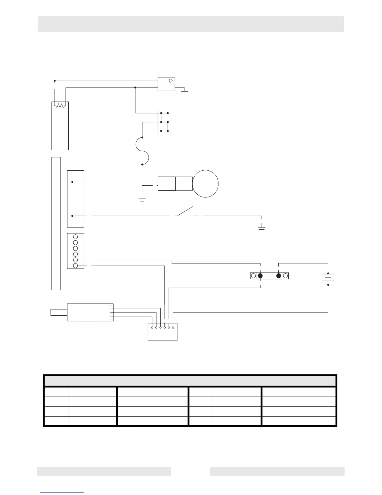
5.9 Wiring Diagram
Wire Colors
B Black R Red Y Yellow Or Orange
G Green T Tan Br Brown Pr Purple
L Blue V Violet Cl Clear Sh Shield
P Pink W White Gr Gray LL Light blue
80
12V
87
88
R
80
91
89
R
B
87
Or
86
R
R
R
B+
R
82
83
85
81
83
G
B
W
B
84
82
81
Bl
B
R
R
4
11
Y
Or
91
90
90
88
89
R
B
W
1
2
3
4
5
6
7
12
8
9
10
11
wc_gr001868
NO
C
NC
+

Table of Contents

Related product manuals