EasyManua.ls Logo

Walchem WebMaster - Wiring Instructions

Walchem WebMaster
28 pages
Print Icon
To Next Page IconTo Next Page
To Next Page IconTo Next Page
To Previous Page IconTo Previous Page
To Previous Page IconTo Previous Page
Loading...
8
Wiring Instructions
WebMaster
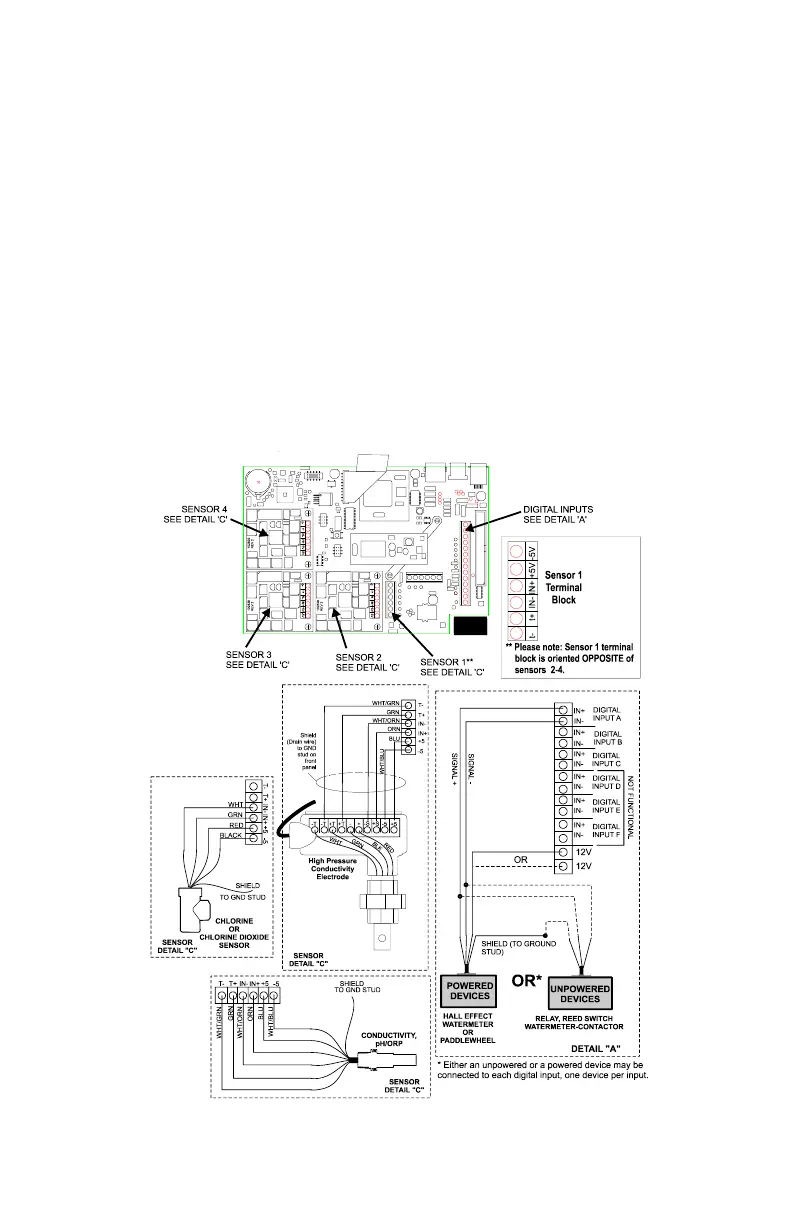
The sensor is provided with a 2-twisted pair, shielded, 24 AWG, 35
pF/foot capacitance cable. The wiring to the controller is as follows:
Shield Drain: Earth Ground
GRN: IN+
WHT: IN-
RED: +5 V
BLK: - 5 V
If the required cable length exceeds the 6 meters (20 feet) that is supplied,
wire the housing to a 190851 terminal box, then use a p/n 100084 cable to
reach the instrument. The maximum cable length is 30.5 meters (100 feet).

Other manuals for Walchem WebMaster

Related product manuals