EasyManua.ls Logo

Warmtech WTCAC15-DU - Page 30

Warmtech WTCAC15-DU
Print Icon
To Next Page IconTo Next Page
To Next Page IconTo Next Page
To Previous Page IconTo Previous Page
To Previous Page IconTo Previous Page
Loading...
30
Waarschuwing bij het aansteken:
1 Controleer de brandstoftank en zorg ervoor dat er genoeg brandstof in zit;
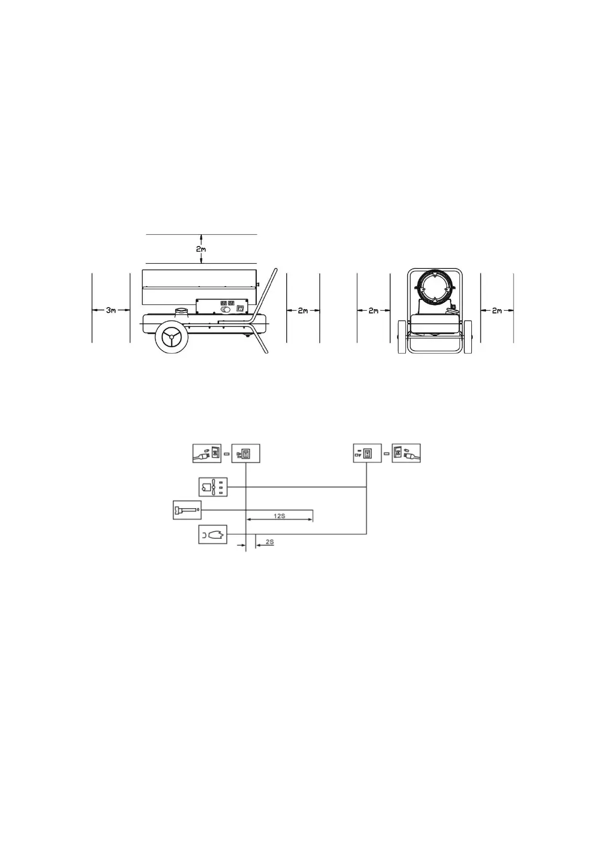
2 Kom na het aansteken niet te dicht met uw gezicht bij het verwarmingsgedeelte van het
apparaat. Bewaar een veilige afstand van min. 3 meter aan de voorkant van de
heteluchtuitlaat, 2 meter aan de bovenkant en meer dan 2 meter aan de linker- en
rechterkant (zie: onderstaande figuur);
3 Stop met het apparaat te gebruiken wanneer er rook of een vreemde geur vrijkomt;
4 Zorg ervoor dat het heteluchtkanon aangestoken is voordat u ervan weg gaat.
Veiligheidsmaatregelen
OntstekingSteek de stekker in het stopcontact, zet de schakelaar in stand “1”, het
verklikkerlichtje brandt, de ontsteking vindt automatisch plaats wanneer de ingestelde
temperatuur hoger is dan de kamertemperatuur die is weergegeven op de digitale LED
temperatuurweergave.
Als het verwarmingskanon niet start, zet u de aan/uit-schakelaar op "0" en vervolgens op "1".
Als het verwarmingskanon na drie keer niet start, neem dan contact op met uw dealer.
Let opOm brand te voorkomen, mag u de vloer tijdens het gebruik van het heteluchtkanon
nooit laten oververhitten.
Gedoofde vlam
Let op
1Wanneer u het heteluchtkanon uitschakelt, moet u er zeker van zijn dat de vlam uit is
voordat u van het apparaat weggaat
2Zet de schakelaar op de “0” stand, wacht totdat de ventilator stopt met werken en het
verklikkerlampje uitgaat. Trek dan de stekker uit het stopcontact.