EasyManua.ls Logo

Warner Electric MCS-203 - Page 7

Default Icon
24 pages
Print Icon
To Next Page IconTo Next Page
To Next Page IconTo Next Page
To Previous Page IconTo Previous Page
To Previous Page IconTo Previous Page
Loading...
Warner Electric • 800-825-9050 P-0257-WE • 819-9027 7
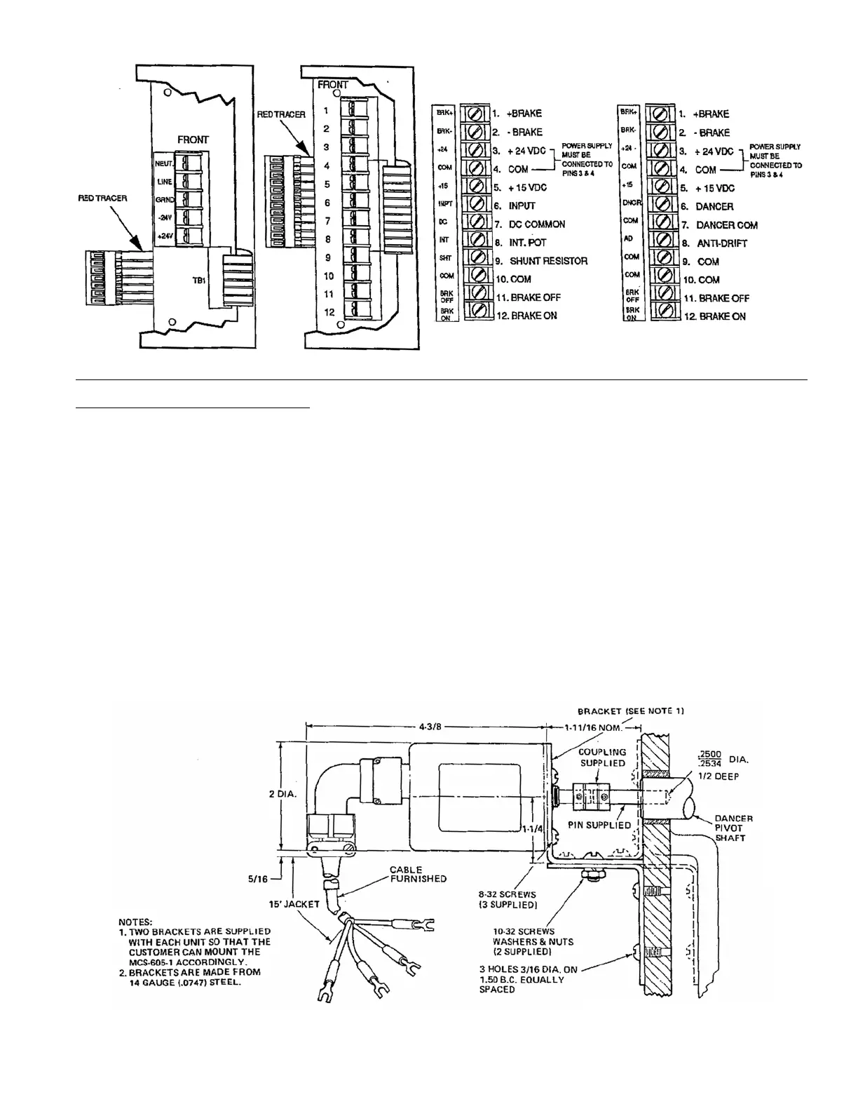
Figure 5. Terminal strip label orientation
MCS-605-1 Sensing Potentiometer
1. Using a No. 2 drill, drill a 1/2” deep hole in
the center of the dancer pivot shaft.
2. Drive the supplied pin into the hole in the
shaft until half its length remains exposed.
3. Assemble the two brackets supplied with
the two 10-32 screws.
4. Mount the sensor to the brackets using the
three 8-32 screws.
5. Position the sensor and bracket so that
the sensor shaft and pin are aligned and
separated by 5/16”.
6. While holding the sensor and bracket in this
position, mark the centers of the bracket
holes on the machine.
7. Drill and tap three (3) holes for 8-32 screws
in the machine.
8. Connect the sensor shaft to the pin with the
supplied universal coupling. The index mark
on the sensor shaft must be aligned with
the index mark on the sensor face when
the dancer arm is at the midpoint position.
9. Mount the sensor and bracket to the
machine with three (3) 8-32 screws.
10. The sensor is now ready to be wired. Refer
to the wiring section starting on page 8 of
this manual for complete instructions.
Figure 6. MCS-605-1 & TCS-605-5 Mounting Details

Related product manuals