EasyManua.ls Logo

Wascomat W620 Classic - Page 52

Wascomat W620 Classic
132 pages
Print Icon
To Next Page IconTo Next Page
To Next Page IconTo Next Page
To Previous Page IconTo Previous Page
To Previous Page IconTo Previous Page
Loading...
21
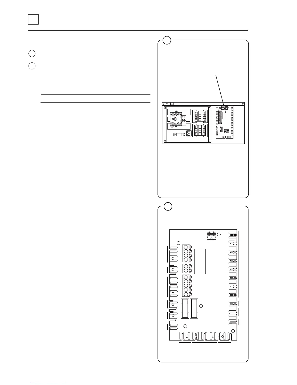
21. Control unit
12
Service
Manual
8
T1
T2
T3
L1
N
N
L2
L3
Communication card
5182
Communication card
This communication card contains:
Fuses F11 and F12 (1.25 A)
These protect the received voltage supply for
the programme unit and door lock controller.
•Output connection blocks
Control signals for connection to external
system such as detergent supply.
Card No. Function
Outputs (110V AC)
X70 see Payment system
X71:1 0 V Door locked (common)
X71:2 L1 Door locked
X72:1 Common
X72:2 Liquid supply 1 (Pre wash)
X72:3 Liquid supply 2 (Main wash)
X72:4 Liquid supply 3 (Softener)
X72:5 Liquid supply 4 (Bleach)
Fig.
8
Fig.
9
9
6052
Card A
X53
X52
X51
X50
X41
X42
X43
X44
X45
X46
X72
X50 X51 Y35 Y25 Y24 Y15 Y13 Y12 Y11 Y14
X71 X70
X81
X47 X48 X49
X81

Related product manuals