EasyManua.ls Logo

Wavetronix Click 222 - Page 131

Default Icon
260 pages
Print Icon
To Next Page IconTo Next Page
To Next Page IconTo Next Page
To Previous Page IconTo Previous Page
To Previous Page IconTo Previous Page
Loading...
130 CHAPTER 11 CLICK 120/121
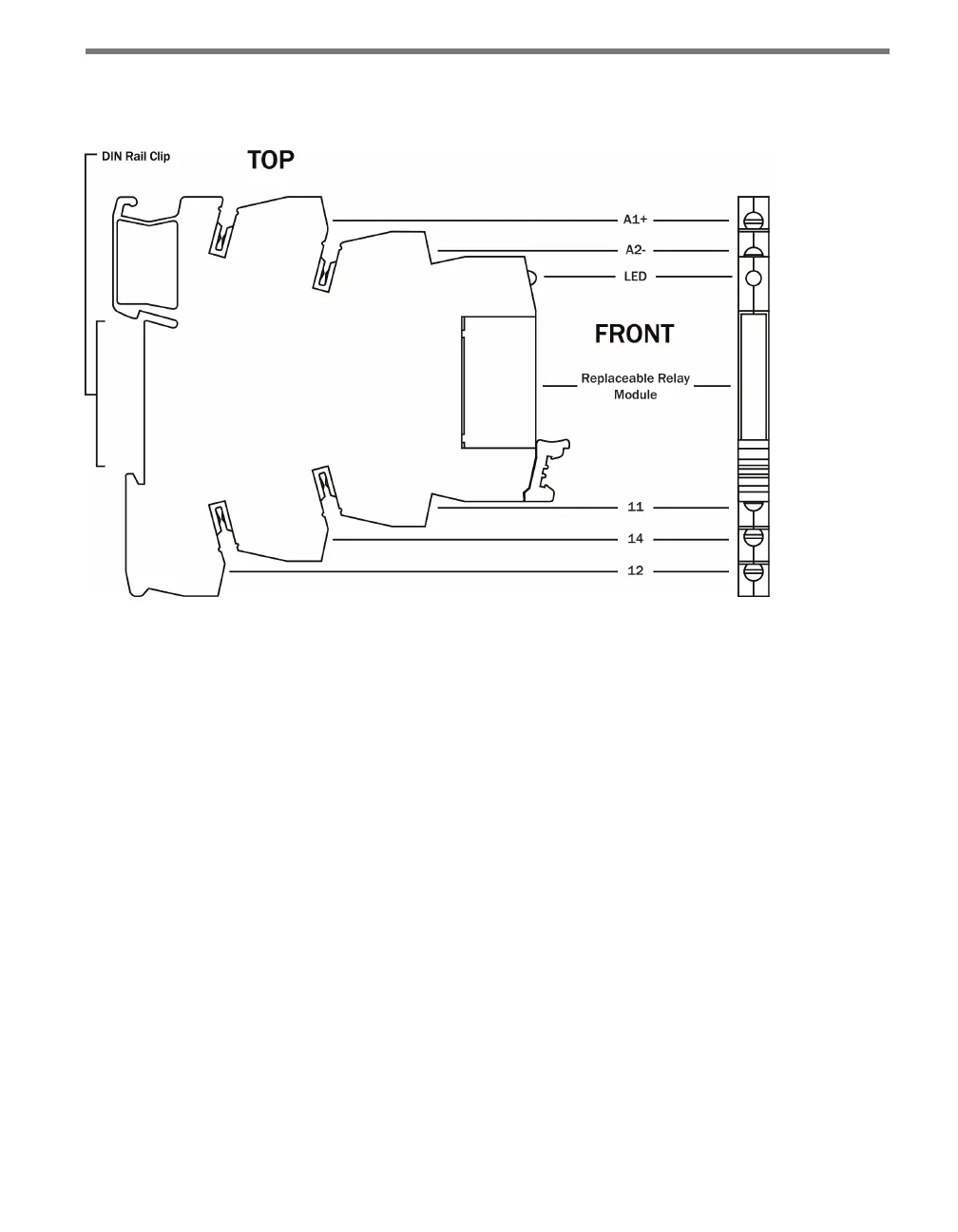
Physical Features
Figure 11.2 – Diagram of the Click 120
e Click 120/121 feature ve terminals. On the Click 120, these are screw terminals; the
Click 121 features spring cage terminals.
On the top, or coil, side of the module are two terminals marked A1+ and A2–. ese termi-
nals are for wiring in from a contact closure module such as the Click 100. On the bottom,
or contact, side of the module are three terminals marked 11, 14 and 12. ese terminals are
for wiring in power and for wiring to the signaling system.
On the upper front of the device is an LED marked 24 V. is LED will light up when the
coil side is receiving 24 VDC in (meaning there is a current from the contact closure mod-
ule, and the contact side of the Click 120/121 has switched from 12 to 14).
On the lower front of the device is the engagement lever, which allows you to remove the
relay module and replace it, if necessary. To remove the relay module, slide the switch down
(away from the relay section) until the relay module pops out. To put in a new module,
position it in the center, lining up the holes in the base with the prongs in the relay section,
then press down until the engagement lever pops back into place.
Installation
e Click 120/121 are mounted on a DIN rail using the same motion used for all Click

Table of Contents

Other manuals for Wavetronix Click 222

Related product manuals