EasyManua.ls Logo

Wayne-Dalton DS-350 - OPERATION; A; PUSH-UP

Wayne-Dalton DS-350
11 pages
Print Icon
To Next Page IconTo Next Page
To Next Page IconTo Next Page
To Previous Page IconTo Previous Page
To Previous Page IconTo Previous Page
Loading...
STEP 1 UNPACKING DOORS
Doors shipped by common carrier arrive at the job site packed in cardboard. Before removing the door from the
packaging, inspect the door and packaging for visible signs of damage. If damage is noted, file a freight claim with
the freight company immediately.
IMPORTANT!
Do not remove cardboard or cut tape that holds door in a roll.
You will be told later when to do this.
No guarantee will be given by Wayne-Dalton if the door is not erected as instructed. For best operation, follow the
instructions step by step. Please review all instructions thoroughly before starting installation.
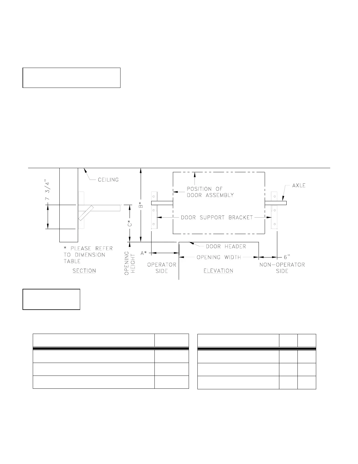
STEP 2 CHECK THE DOOR OPENING
Verify the opening measurements with the door packing slip. Consult the factory if the actual opening width varies
from that shown on the packing slip by more than 2 inches. Check door jambs, header, and floor for plumb/level
condition. Check that there is sufficient clearance at jambs and head (see Dimension Tables below).
4
Left hand operated door shown above. Right hand is opposite.
DIMENSION TABLES - MINIMUM OVERHEAD CLEARANCE (B) INDICATED
OPERATION A
PUSH-UP 6”
DIRECT DRIVE CHAIN/MOTOR 9”
REDUCED DRIVE CHAIN 8”
OPENING HEIGHT B C
UP TO 8’ HIGH 20” 10”
FROM 8’ TO 10’ HIGH 22” 11”
OVER 10’ HIGH 24” 12”
NOTE:

Related product manuals