EasyManua.ls Logo

Wayne-Dalton FireStar 540 - Appendix D: Additional Fusible Link Cabling

Wayne-Dalton FireStar 540
33 pages
Print Icon
To Next Page IconTo Next Page
To Next Page IconTo Next Page
To Previous Page IconTo Previous Page
To Previous Page IconTo Previous Page
Loading...
344940 REV2 03/17/2020
©
Copyright 2020 Wayne Dalton, a division of Overhead Door Corporation 29
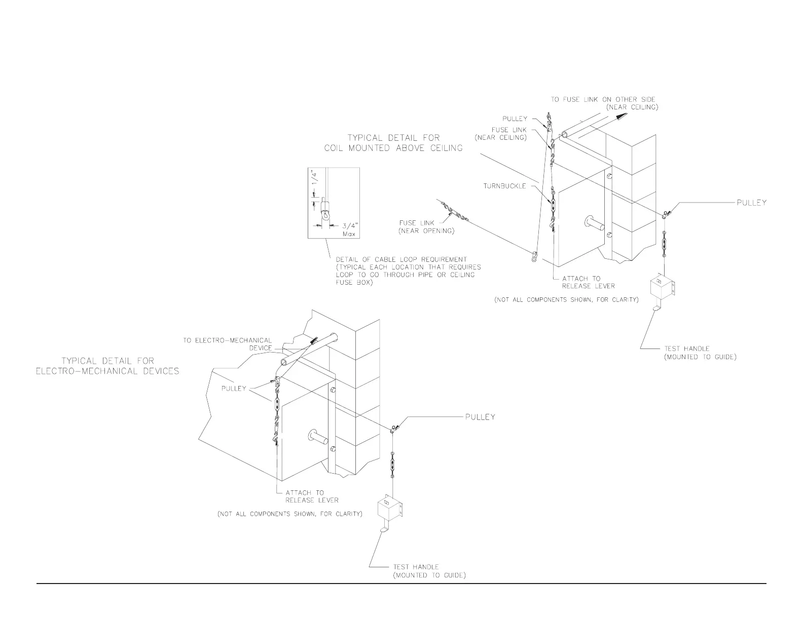
APPENDIX D: ADDITIONAL FUSIBLE LINK CABLING
Below are additional details for re shutters with the coil mounted above ceiling, or a typical modication for electro-mechanical release devices. These are provided as a sam-
ple and may not be right for every installation. The actual eld condition at the job site will determine the best cable routings. If you need help determining a cable routing
for your installation contact Wayne-Dalton Technical Service for assistance.

Related product manuals