EasyManua.ls Logo

Wayne-Dalton FireStar 540 - Step 2: Guide Mounting

Wayne-Dalton FireStar 540
33 pages
Print Icon
To Next Page IconTo Next Page
To Next Page IconTo Next Page
To Previous Page IconTo Previous Page
To Previous Page IconTo Previous Page
Loading...
344940 REV2 03/17/2020
©
Copyright 2020 Wayne Dalton, a division of Overhead Door Corporation 9
STEP 2
GUIDE MOUNTING  FACE MOUNTED BRACKETS ABOVE LINTEL SHUTTERS SKIP TO “BETWEEN JAMBS.... SECTION FOR BRACKETS MOUNTED BELOW LINTEL
The inner and outer guides are factory assembled, but must be disassembled in order to be installed (See Figure #5A). Group the parts of each guide together as they are not
interchangeable.
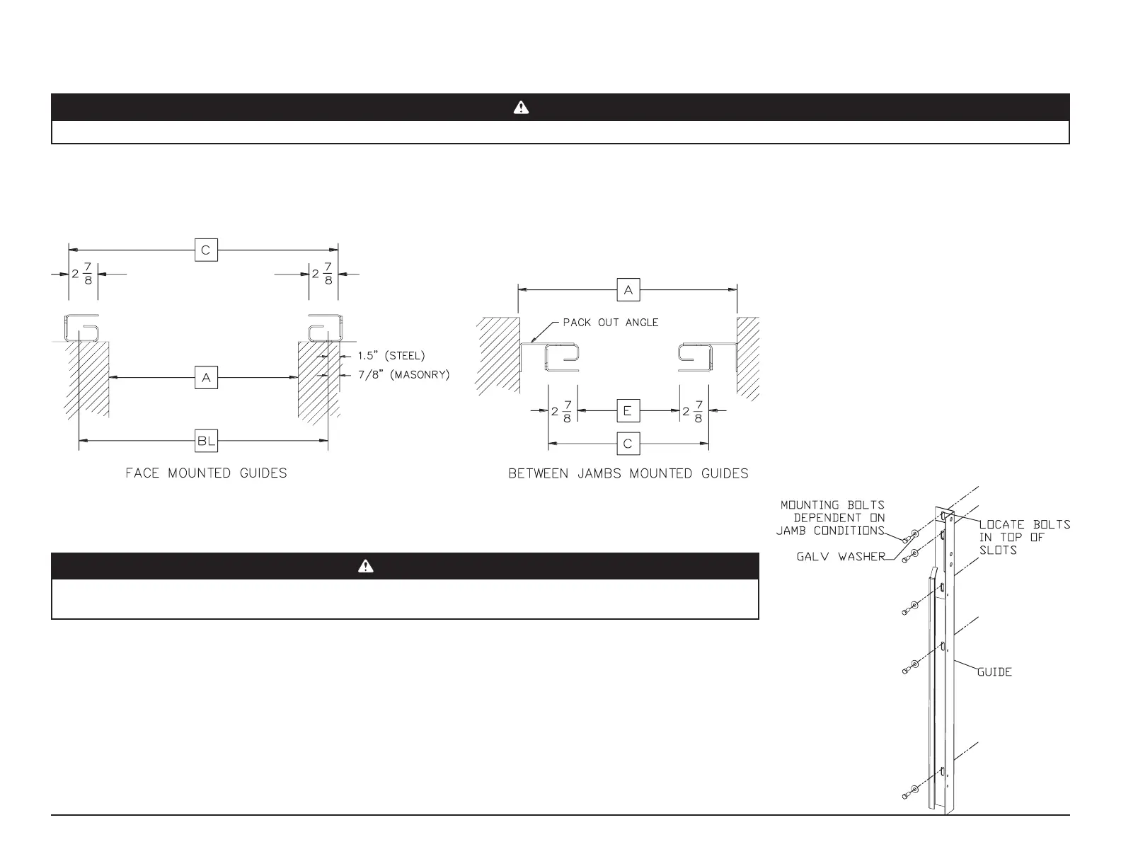
Refer to Figure #4. To determine the location of the “bolt line” (BL) for the guide mounting bolts on the wall, rst locate and mark the center of the opening. Obtain the “C”
dimension from the installation drawing and subtract 1.75” for masonry jambs or 3” for steel jambs to determine the bolt line (BL).
“C” Dimension (from Dwg) __________________
- 1.75” (Masonry) or -3” (Steel)
Bolt line (BL) _____________________________
Divide BL in half (BL/2) and measure this distance either side of the opening center mark to obtain the bolt line on each
jamb. Drop a plumb line down and make a second mark on the wall at the bottom of each jamb. Using a chalk line, snap a
vertical line the length of the “F” dimension.
After determining guides are plumb, level and properly spaced, mark the location of the guide mounting slots on each
jamb.
NOTE: restar re shutters are designed to expand upward. For this reason, mounting bolts must be located at the top of
the slots.
IMPORTANT: THE GALVANIZED WASHERS MUST BE INSTALLED TO ENSURE PROPER GUIDE EXPANSION IN EVENT OF FIRE.
WARNING
GUIDE ASSEMBLIES ARE EXTREMELY HEAVY. TO AVOID POSSIBLE INJURY, PERSONS WITH LIFTING LIMITATIONS SHOULD NOT PERFORM THIS NEXT STEP.
Figure 4
WARNING
WELDING THE GUIDES TO THE JAMBS IS NOT ALLOWED DUE TO THE VERTICAL EXPANSION REQUIRED FOR THE
SHUTTER TO FUNCTION PROPERLY.

Related product manuals