EasyManua.ls Logo

Weil-McLain 88 - Page 37

Weil-McLain 88
40 pages
Print Icon
To Next Page IconTo Next Page
To Next Page IconTo Next Page
To Previous Page IconTo Previous Page
To Previous Page IconTo Previous Page
Loading...
"OILERMANUALs)NSTALLATIONs3TART5Ps-AINTENANCEs0ARTS
37Part No. 550-100-068/1009
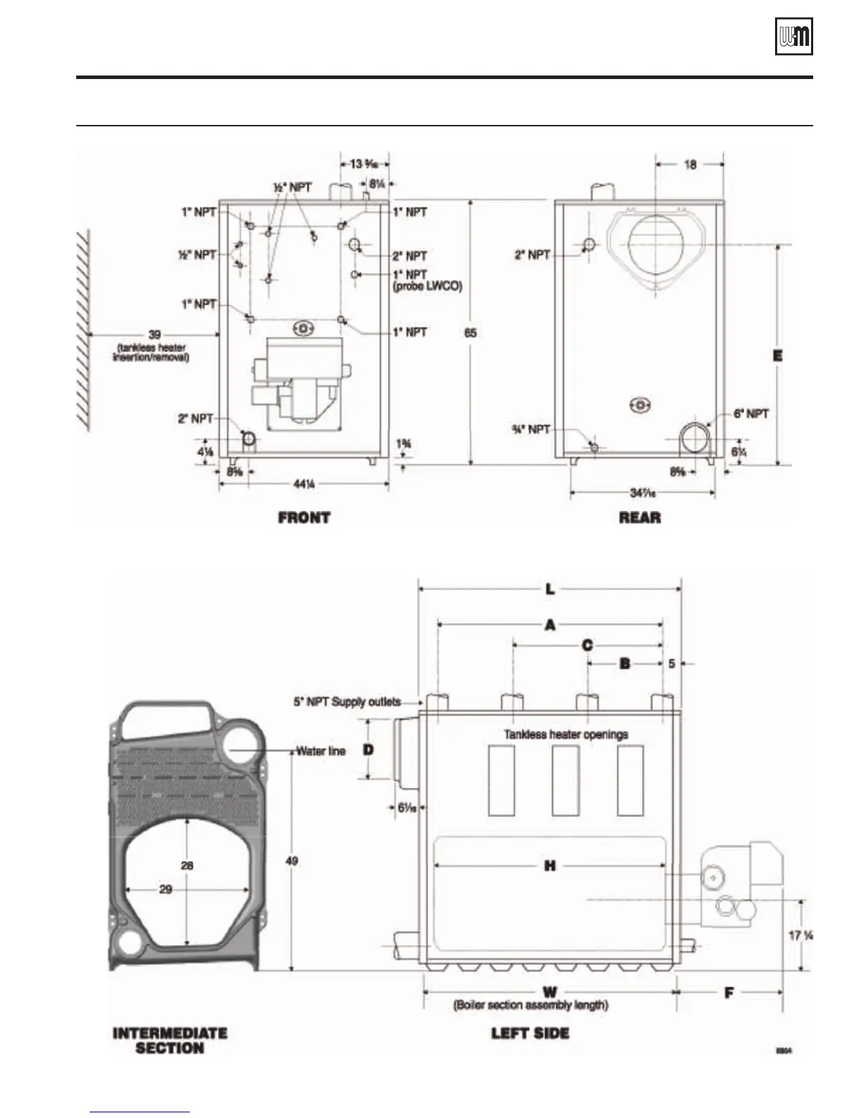
Dimensions
(continued)
Dimensions (see lettered dimensions on opposite page)&IGURE

Other manuals for Weil-McLain 88

Related product manuals