EasyManua.ls Logo

Whale S360EW - Electrical Wiring

Whale S360EW
9 pages
Print Icon
To Next Page IconTo Next Page
To Next Page IconTo Next Page
To Previous Page IconTo Previous Page
To Previous Page IconTo Previous Page
Loading...
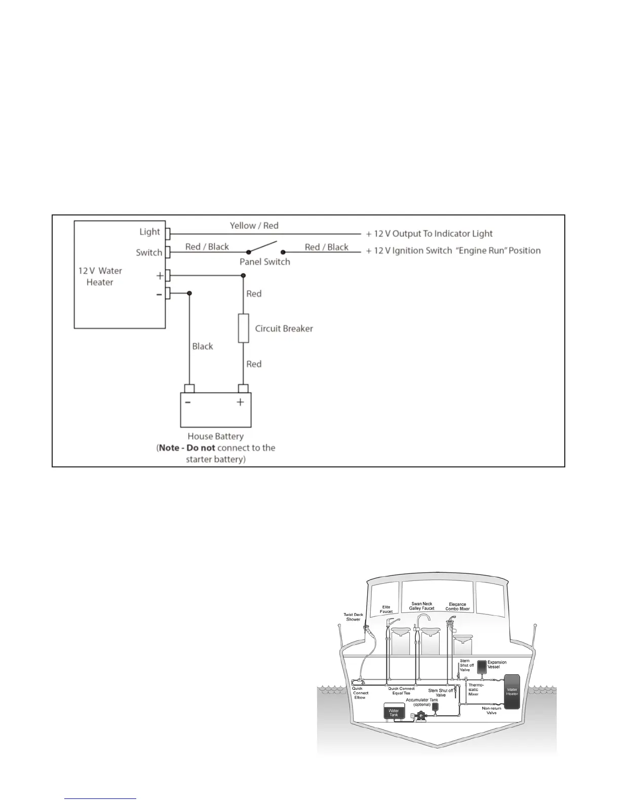
8.v Electrical Wiring
WARNING: Fire hazard. Wiring must comply with applicable electrical standards and include a properly sized
circuit breaker. Improper wiring can cause a fire resulting in injury or death.
Switch off the power prior to making connections.
Suggested wiring information is given as a guide only. For full information, refer to USCG, ABYC and ISO
regulations for marine applications and wiring gauges, connectors and circuit protection.
NOTE: Electrical wiring must comply with the wiring diagram (Figure 4). The switch must be connected to the 12 V
ignition switch in the engine run position to ensure the heater is only operational when the engine is
running.
Care must be taken to ensure the heater is only operational at cruising speed. The heater must be switched off
when the vessel is idling, this will prevent battery power drainage.
NOTE: On 12 volt circuits a 35 amp circuit breaker must be used.
NOTE: For a dual battery system, Whale
® recommends the use of a Battery Management System.
8.vi Fitting The Circuit Breaker
The purpose of this circuit breaker is to protect the appliance from serious damage, therefore please ensure a 35 Amp
circuit breaker is installed between the water heater and auxiliary battery prior to use. This will protect the system from
damage.
If the breaker blows:
a) Check for reverse polarity connection.
b) Check the breaker in the system is correct for the model.
c) Check there have been no power surges.
d) Check all electrical connections.
8.vii. Thermostatic Mixer Valve
NOTE: A Thermostatic Mixer Valve must be installed as a
temperature control device to prevent risk of injury. This is as
per ABYC H-23 standards.
The Thermostatic Mixer Valve can be installed either
on each outlet or as a central control in a hot water
system. (See figure 5).
Whale
® recommends the use of the Whale®
Thermostatic Mixer Valve - WX1599B.
5
Figure 4 - Wiring Diagram for
Dedicated Battery Installation
Figure 5 - Typical Hot Water System

Other manuals for Whale S360EW

Related product manuals