EasyManua.ls Logo

whaler 220 Dauntless - Page 73

whaler 220 Dauntless
80 pages
Print Icon
To Next Page IconTo Next Page
To Next Page IconTo Next Page
To Previous Page IconTo Previous Page
To Previous Page IconTo Previous Page
Loading...
4-5220 Dauntless
Section 4  Electrical System
R
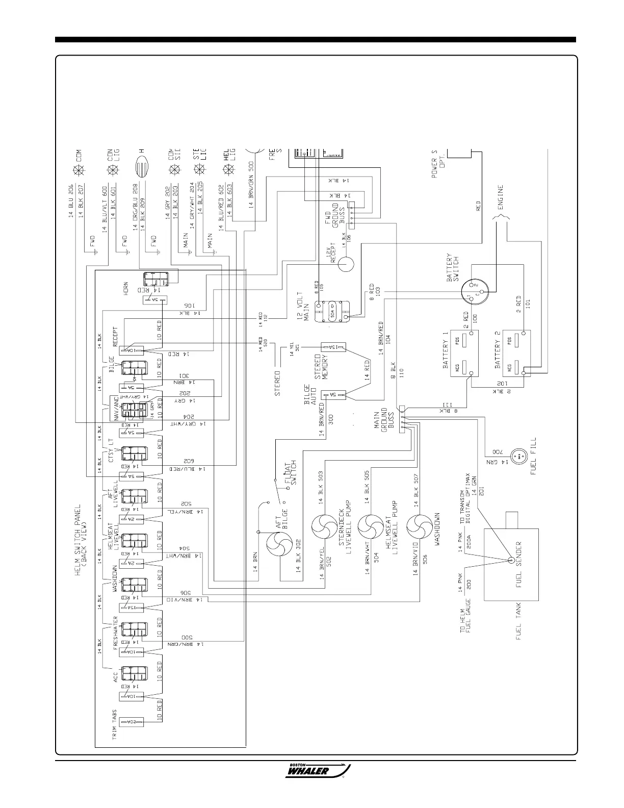
Control Station Wiring Diagram
Fig. 4.5.1

Table of Contents

Related product manuals