EasyManua.ls Logo

Whirlpool AWM 8000-E - Circuit Diagram

Whirlpool AWM 8000-E
19 pages
Print Icon
To Next Page IconTo Next Page
To Next Page IconTo Next Page
To Previous Page IconTo Previous Page
To Previous Page IconTo Previous Page
Loading...
SERVICE
30.08.2002 / Page 10 AWM 8000-E,P,GR Whirlpool Europe
Doc. No: 4812 712 17647 8570 077 18000 Customer Service
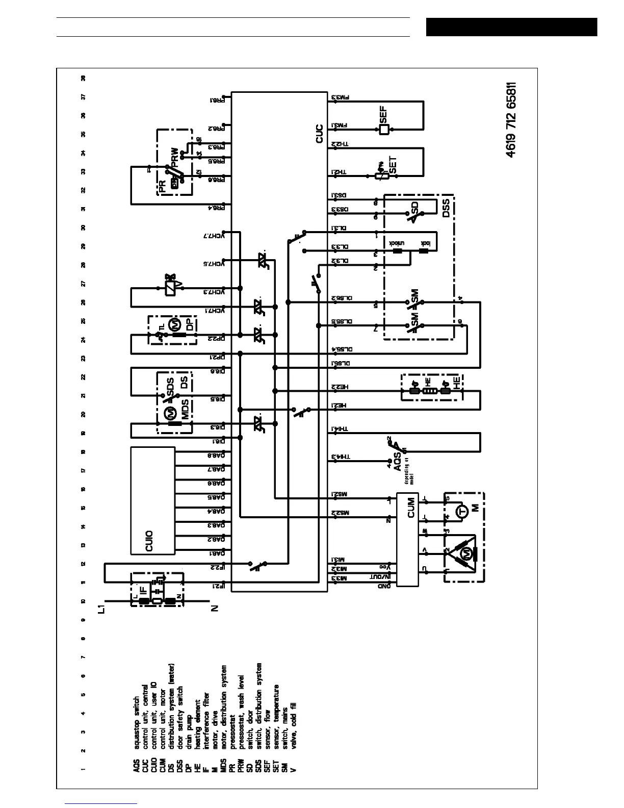
Circuit diagram

Related product manuals