EasyManua.ls Logo

Whirlpool CAE2743BQ0 - Washer Dimensions and Specifications

Whirlpool CAE2743BQ0
28 pages
Print Icon
To Next Page IconTo Next Page
To Next Page IconTo Next Page
To Previous Page IconTo Previous Page
To Previous Page IconTo Previous Page
Loading...
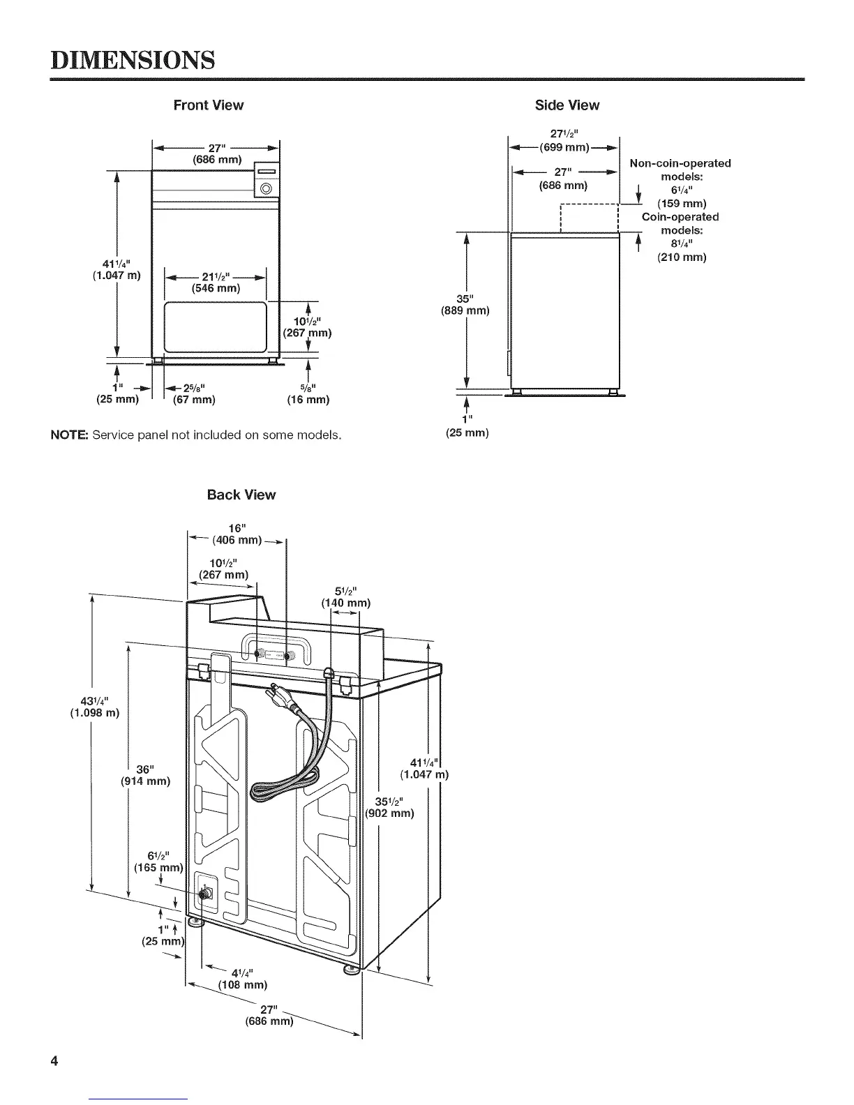
DIMENSIONS
Front View
[
411/4"
(1.047 m)
L
1" --D
(25 ram)
27"
(686 ram)
-(5211/2"
46 ram)
.,,i- 25/8'' 5/8,,
(67 ram) (16 ram)
NOTE: Service panel not included on some models.
T
35"
(889 ram)
÷
1"
(25 ram)
Side View
271/2"
-,t----- (699 mm)_
I Non=coin=operated
27" "=---_ I models:
(686 ram) _ 61/4,,
¢ ,--V (159 mm)
,' ' Coin-operated
............................_................ ' models:
q 81/4,,
(210 ram)
Back View
431/4''
(1.o98m)
36"
(914 ram)
61/2 H
(165 ram)
(25 ram'
41/4,,
(108 ram)
27"
(686
51/2 H
40 mm)
411/4"
(1.047 m)
351/2''
(902 ram)
4

Related product manuals