EasyManua.ls Logo

Williams 6008532 - Optional Accessory Installation

Williams 6008532
36 pages
Print Icon
To Next Page IconTo Next Page
To Next Page IconTo Next Page
To Previous Page IconTo Previous Page
To Previous Page IconTo Previous Page
Loading...
Installing Your Furnace
Optional Accessory Installation
SIDE OUTLET MODEL 6701
REAR OUTLET MODEL 6801
SHORT REAR OUTLET MODEL 6802
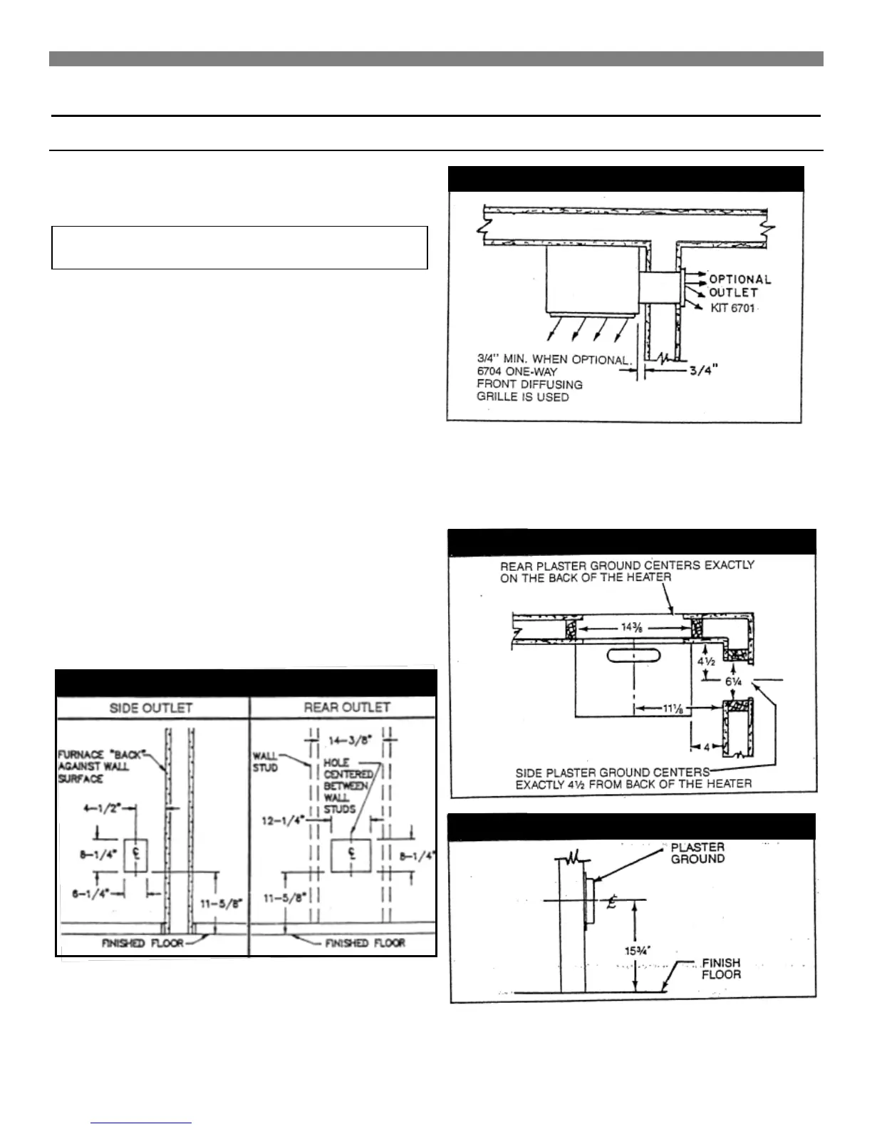
CAUTION: Use only Boots and Grilles provided
by the manufacturer.
CLEARANCES
IMPORTANT
Carefully follow all measurements and clearances given to ensure
proper installation.
When SIDE OUTLET MODEL 6701 is used, the furnace casing
must be a minimum of 4 inches from an adjacent side wall (except
may be 3/4" minimum when 1-WAY FRONT DIFFUSING GRILLE
is used). See Fig. 26 and Fig 27.
When REAR OUTLET MODEL 6801 or SHORT REAR OUTLET
MODEL 6802 is used, the furnace casing must be a minimum of
12 inches from an adjacent side wall as shown on Page 8, Fig.
3D.
CUT CASING OPENING(S)
Before setting the furnace into position, cut a 5x7 inch rectangular
opening for Side Register, or 7x11 inch opening for a Hear Outlet
Register where marked on the furnace casing. Cut carefully as
edges must be straight and smooth. See Page. 13, Fig 13.
CUT WALL OPENING(S)
Make an opening(s) in the wall(s) for a Side and/or a Rear Outlet
Register. See Fig. 25.
INSTALL PLASTERGROUNDS
Install plastergrounds as shown in Fig. 27 and Fig. 28. Flanges of
plastergrounds extend the normal thickness of plaster. If
“DRYWALL” or other thin material, flanges must be trimmed off
flush with wall surface.
FIGURE 25 CUT WALL OPENING
FIGURE 26
FIGURE 27
FIGURE 28

Related product manuals