EasyManua.ls Logo

Wolf CGB-2K-24 - Page 83

Wolf CGB-2K-24
108 pages
Print Icon
To Next Page IconTo Next Page
To Next Page IconTo Next Page
To Previous Page IconTo Previous Page
To Previous Page IconTo Previous Page
Loading...
3064810_201804 83
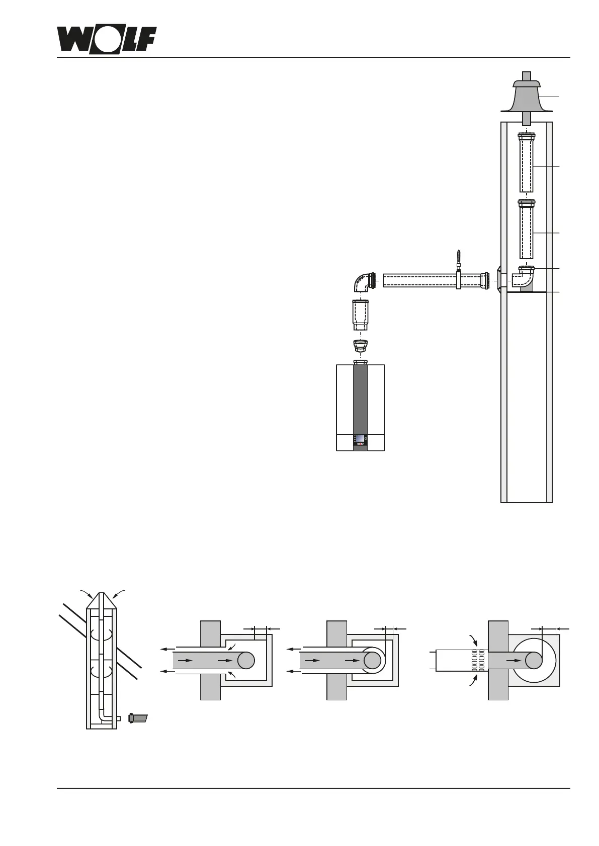
37.Technicalinformation,air/uegas
routing
Notifyyourlocaluegasinspectorpriortoinstallation.
16
22
11
45
4
2
26
10
4
8
1
C33x
4
>20
>30
5
C93xbalancedue
in a duct DN80
C33xbalancedue
in a duct DN80/125
B33openue
in a duct DN80
C93xbalanceduesystem
DN80/185 horizontal and DN80 vertical
Connectiontoaconcentricbalancedueinsideaduct(examples)DN80/125,C33x
Connectiontoaueinsideaduct,C93x
1 Gascondensingboiler
2 Adaptor DN60/100 to DN80/125
4 BalanceduepipeDN80/125
500 mm
1000 mm
2000 mm
5 Spacerbracket
8 Separator
(slide coupling) if required
10 Inspectionbend87°DN80/125
11 Support bend 87° DN80/125
16 Pipe collar
22 Support rail
26 Ductcover with
UV resistant terminal

Other manuals for Wolf CGB-2K-24

Related product manuals