EasyManua.ls Logo

Wolf CTWH30 - Wolf Warming Drawers

Wolf CTWH30
84 pages
Print Icon
To Next Page IconTo Next Page
To Next Page IconTo Next Page
To Previous Page IconTo Previous Page
To Previous Page IconTo Previous Page
Loading...
12
Electrical Requirements
The Wolf warming drawer requires a
separate, grounded 120V, 60 Hz
power supply. The service should
have its own 15 amp circuit breaker
and a grounded 3-prong receptacle
should be located within the reach of
the 3' (.9 m) power cord, and flush
with the back wall. Locate electrical
within the shaded area shown in the
illustrations.
IMPORTANT NOTE: A ground fault
circuit interrupter (GFCI) is not
recommended and may cause inter-
ruption of operation.
You must follow all National Electrical
Code regulations. In addition, be
aware of local codes and ordinances
when installing your service.
Stainless Steel Drawer Front
Wolf recommends using a 33" (838)
wide cabinet for the warming drawer
with stainless steel drawer front. A
minimum 30" (762) wide by 24"
(610) deep cabinet is required.
The Wolf warming drawer with
stainless steel drawer front may be
installed in combination with a 30"
(762) single oven and microwave
oven with 30" (762) trim. Refer to the
illustration on page 16. Dimensions
will vary according to the specific
installation.
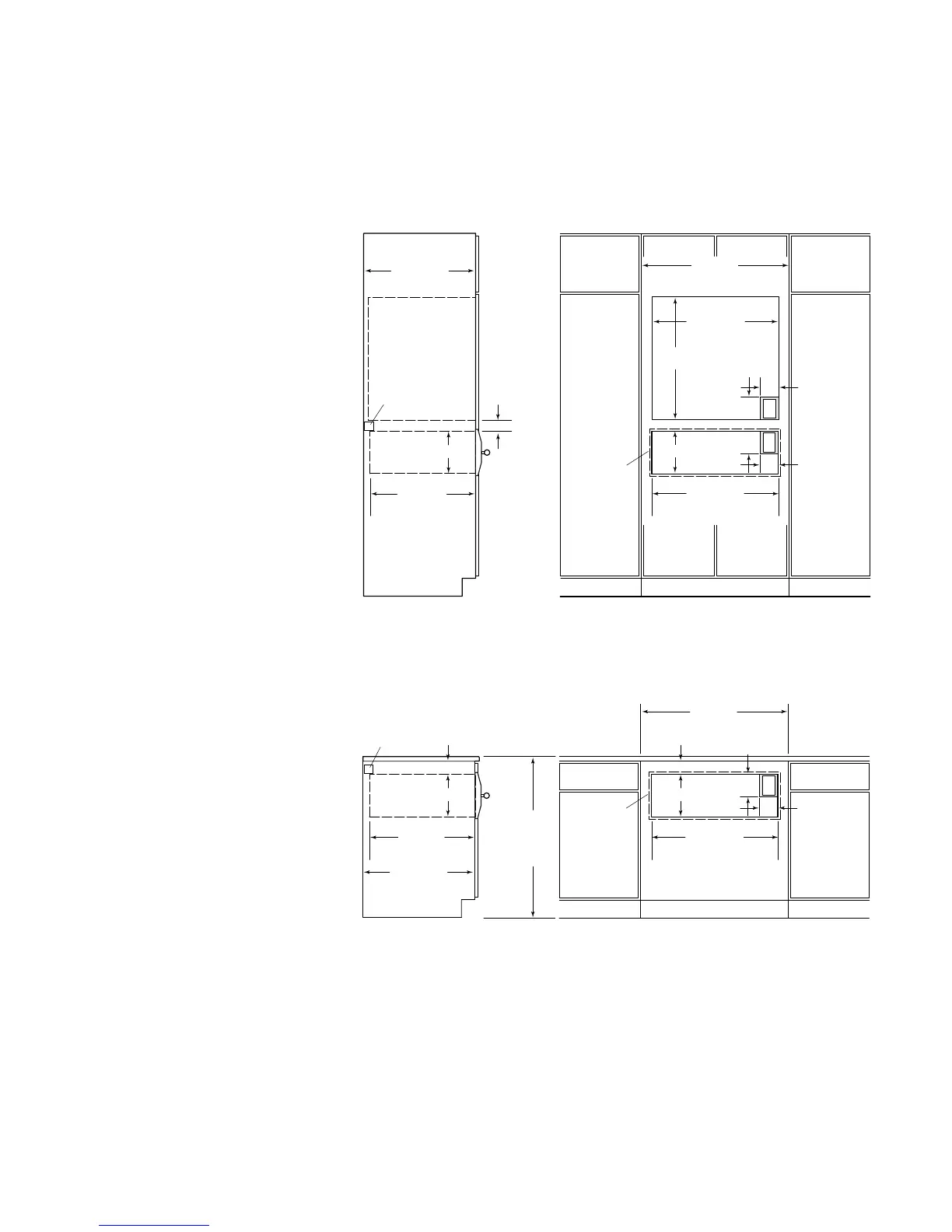
Pre-installation specifications for warming drawer with stainless steel drawer front –
undercounter installation.
W OLF W ARMING D RAWERS
Dimensions in parentheses are in millimeters unless otherwise specified.
28
1
/2" (724)
ROUGH OPENING WIDTH
E
5"
(127)
4"
(102)
23
1
/2"min
(597)
33"(838)
RECOMMENDED CABINET WIDTH
30"min (762)
9
1
/4" (235)
2
3
/8" (60)
9
1
/4" (235)
ALLOW FOR
5
/8" OVERLAP
ON ALL SIDES
2
3
/8" (60)
2" x 2" ANTI-TIP
BLOCK AGAINST
REAR OF CUTOUT
36"(914)
STANDARD
FLOOR TO
COUNTER
HEIGHT
CABINET SIDE VIEW
24"min (610)
CABINET DEPTH
27
3
/16"
(691)
28
1
/2" (724)
OVEN ROUGH
OPENING WIDTH
5"
(127)
4"
(102)
E
33"
(838)
RECOMMENDED CABINET WIDTH
30"min (762)
CABINET SIDE VIEW
28
1
/2" (724)
WARMING DRAWER
ROUGH OPENING WIDTH
E
5"
(127)
4"
(102)
9
1
/4" (235)
2
3
/8"
(60)
ALLOW FOR
5
/8" OVERLAP
ON ALL SIDES
23
1
/2"min
(597)
9
1
/4" (235)
2" x 2" ANTI-TIP
BLOCK AGAINST
REAR OF CUTOUT
24"min (610)
CABINET DEPTH
Pre-installation specifications for warming drawer with stainless steel drawer front –
installation below 30" (762) oven.

Other manuals for Wolf CTWH30

Related product manuals