EasyManua.ls Logo

Wolf CTWH30 - Page 43

Wolf CTWH30
84 pages
Print Icon
To Next Page IconTo Next Page
To Next Page IconTo Next Page
To Previous Page IconTo Previous Page
To Previous Page IconTo Previous Page
Loading...
43
W OLF I NTEGRATED C OOKTOPS
PLANNING
INFORMATION
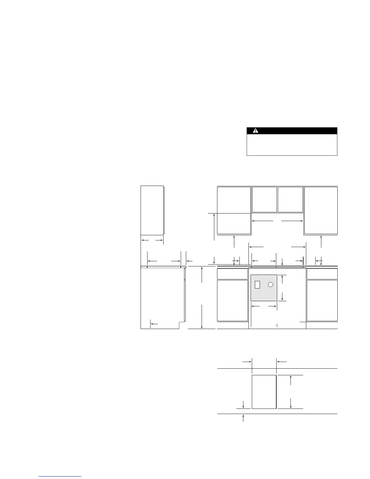
The illustrations provide the overall
size and finished cut-out dimensions
that you need to plan for in your
installation.
IMPORTANT NOTE: When multiple
15" (381) cooktop modules are
installed side by side, refer to the
countertop cut-out dimensions on
page 35.
For the 15" (381) gas multi-function
cooktop, the gas service may be
supplied through the floor or within
the shaded area shown in the illustra-
tion. Refer to the illustration for
specifics on cut-out dimensions and
placement of gas and electrical.
This cooktop can accommodate the
Wolf downdraft system, a Wolf
chimney or Pro Series hood. When
installing a ventilation hood, refer to
the specific requirements of the hood
for the minimum dimension to
cooking surface. Refer to pages 60-82
for ventilation specifics.
Electrical and Gas Requirements
The electric ignition system is a safe,
convenient and reliable manner to
provide ignition for the burner. The
Wolf gas multi-function cooktop
requires a separate 120V, 60 Hz
power supply. The service should
have its own 15 amp circuit breaker,
and a grounded 3-prong receptacle
should be located within the reach of
the 6' (1.8 m) power cord.
IMPORTANT NOTE: A ground fault
circuit interrupter (GFCI) is not
recommended and may cause inter-
ruption of operation.
Locate electrical and gas supply
within the shaded area shown in the
illustration.
E
30"
(762)
5"(127)
13"
(330)
G
15"
(381)
15"
(381)
33" (838)
RECOMMENDED
CABINET WIDTH
LOCATION OF GAS SUPPLY
MAY ALSO EXTEND 5" ON
FLOOR FROM BACK WALL
5"
(127)
LOCATION OF GAS
SUPPLY MAY ALSO
EXTEND 5" ON FLOOR
FROM BACK WALL
NOTE: Application shown allows for installation of two 15" (381) modules side-by-side.
* Minimum 24" (610) from protected cabinet or 30" (762) from unprotected cabinet to cooking surface.
** Minimum clearance from side edge of cooktop cut-out to combustible surface up to 18" (457) above cooking surface.
19
1
/4" (489)
COOKTOP CUT-OUT
DEPTH
2
1
/2"min
(64)
14" (356)
CUT-OUT
WIDTH
18"
(457)
7"**
(178)
18"
(457)
7"**
(178)
24" OR 30"*
(610 or 762)
TO COOKING
SURFACE
36"(914)
STANDARD
FLOOR TO
COUNTER
HEIGHT
The gas multi-function cooktop is
designed to operate on natural gas at
5" WC (water column) pressure or LP
gas at 10" (254) WC pressure. It is
supplied with a 1/2" NPT female gas
connection at the right rear corner of
the cooktop.
The Wolf gas multi-function cooktop
functions up to 8000' (2438 m) in
altitude without any adjustment. If
installation is above 8000' (2438 m),
contact your Wolf dealer.
You must follow all National Electrical
Code regulations. In addition, be
aware of local codes and ordinances
when installing your service.
Dimensions in parentheses are in millimeters unless otherwise specified.
Cut-out dimensions and electrical placement for gas multi-function cooktop.
FRONT OF COUNTERTOP
2
1
/2"min
(64)
19
1
/4" (489)
COOKTOP
CUT-OUT DEPTH
14" (356)
COOKTOP
CUT-OUT
WIDTH
WARNING
This cooktop is intended for
indoor use.

Other manuals for Wolf CTWH30

Related product manuals