EasyManua.ls Logo

Wolf ICBCSO30CMS - Page 6

Wolf ICBCSO30CMS
20 pages
Print Icon
To Next Page IconTo Next Page
To Next Page IconTo Next Page
To Previous Page IconTo Previous Page
To Previous Page IconTo Previous Page
Loading...
6
|
Wolf Customer Care 800.222.7820
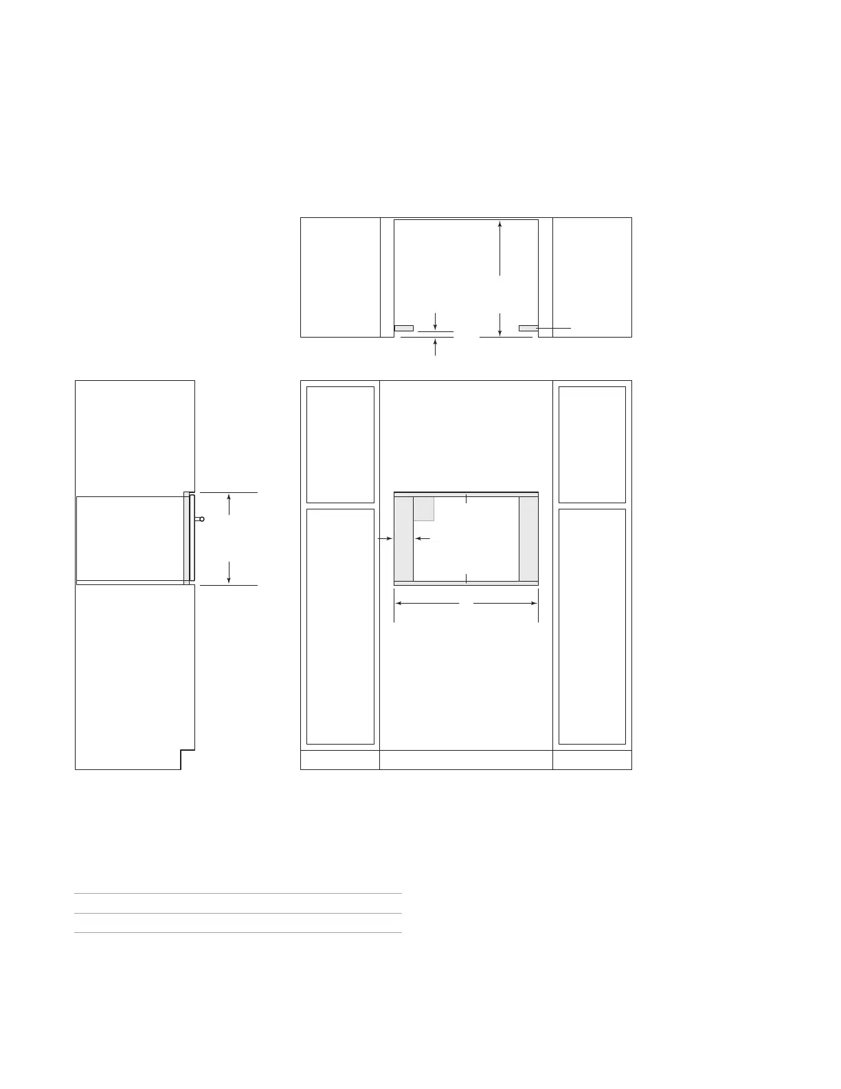
SPECIFICATIONS
Convection Steam Oven
FLUSH INSET INSTALLATION
E
W
FLUSH INSET WIDTH**
FRONT VIEW
SIDE
VIEW
24" (610)
FLUSH INSET
DEPTH
7
/
8
"
(22)
*W
ill be visible and should be finished to match cabinetry.
**
Dimension provides minimum reveals.
18
1
/8"
(460)
FLUSH INSET
HEIGHT**
5
/16"(8)
1
/8" (3)
A
TOP VIEW
FINISHED
CLEATS*
OPENING WIDTH
W A
24" Model 23
3
/4" (603)
13
/16" (21)
30" Model 30
1
/8" (765) 4" (102)

Related product manuals