EasyManua.ls Logo

Wolf ICBCT15E/S - Page 33

Wolf ICBCT15E/S
76 pages
Print Icon
To Next Page IconTo Next Page
To Next Page IconTo Next Page
To Previous Page IconTo Previous Page
To Previous Page IconTo Previous Page
Loading...
Wolf Gas Cooktops 33
wolfappliance.com/specs
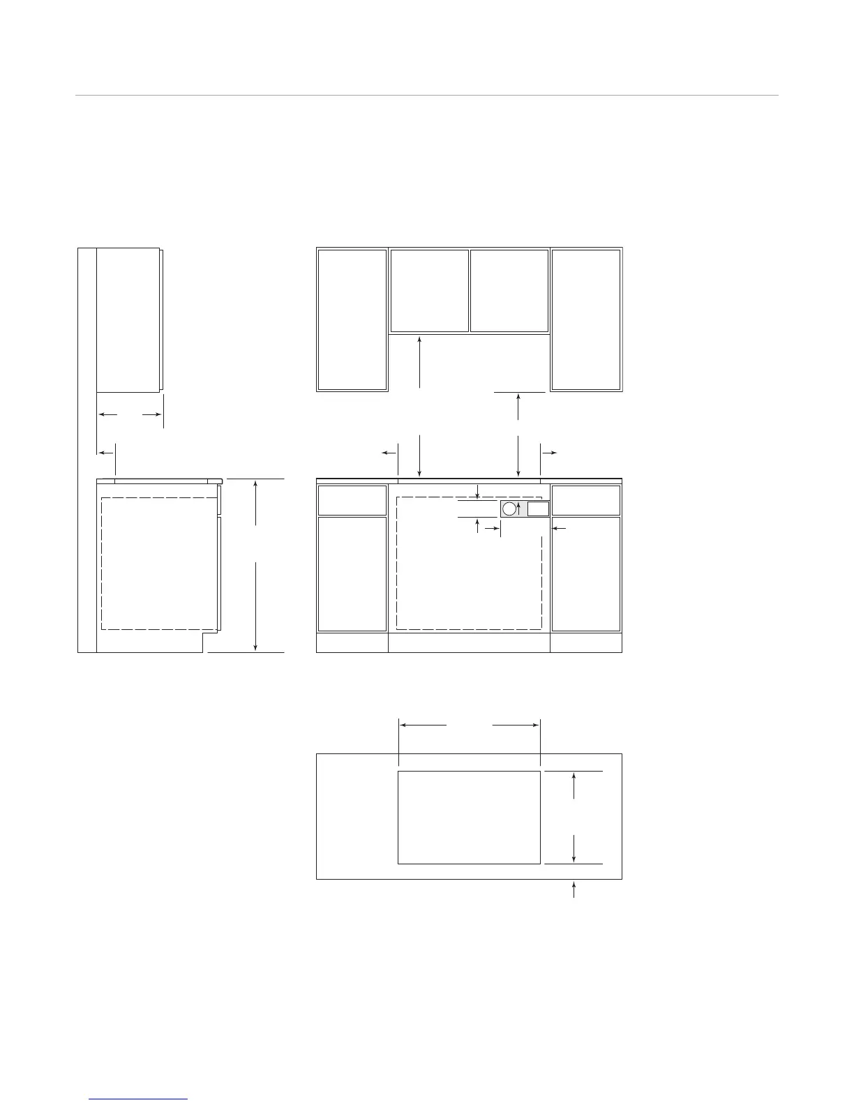
457 mm min
914 mm
FLOOR TO
COUNTERTOP
762 mm
min
COUNTERTOP
T
O COMBUSTIBLE
M
ATERIALS
762 mm OVEN OPENING
102 mm
254 mm
89 mm
E
S
EE COUNTERTOP
C
UT-OUT BELOW
229 mm T
O
C
OMBUSTIBLE
*
229 mm T
O
C
OMBUSTIBLE
*
64
mm*
S
IDE
C
ABINET
3
30 mm
max
737 mm
CUT-OUT WIDTH
COUNTERTOP CUT-OUT
FRONT
489 mm
CUT-OUT
DEPTH
64 mm min
*Minimum clearance from cooktop cut-out to combustible materials up to 457 mm above countertop.
NOTE: Gas and electrical location applies only to installation with built-in oven.
G
762 mm Gas Cooktop
STANDARD INSTALLATION

Related product manuals