EasyManua.ls Logo

Wolf ICBCT15E/S - Page 50

Wolf ICBCT15E/S
76 pages
Print Icon
To Next Page IconTo Next Page
To Next Page IconTo Next Page
To Previous Page IconTo Previous Page
To Previous Page IconTo Previous Page
Loading...
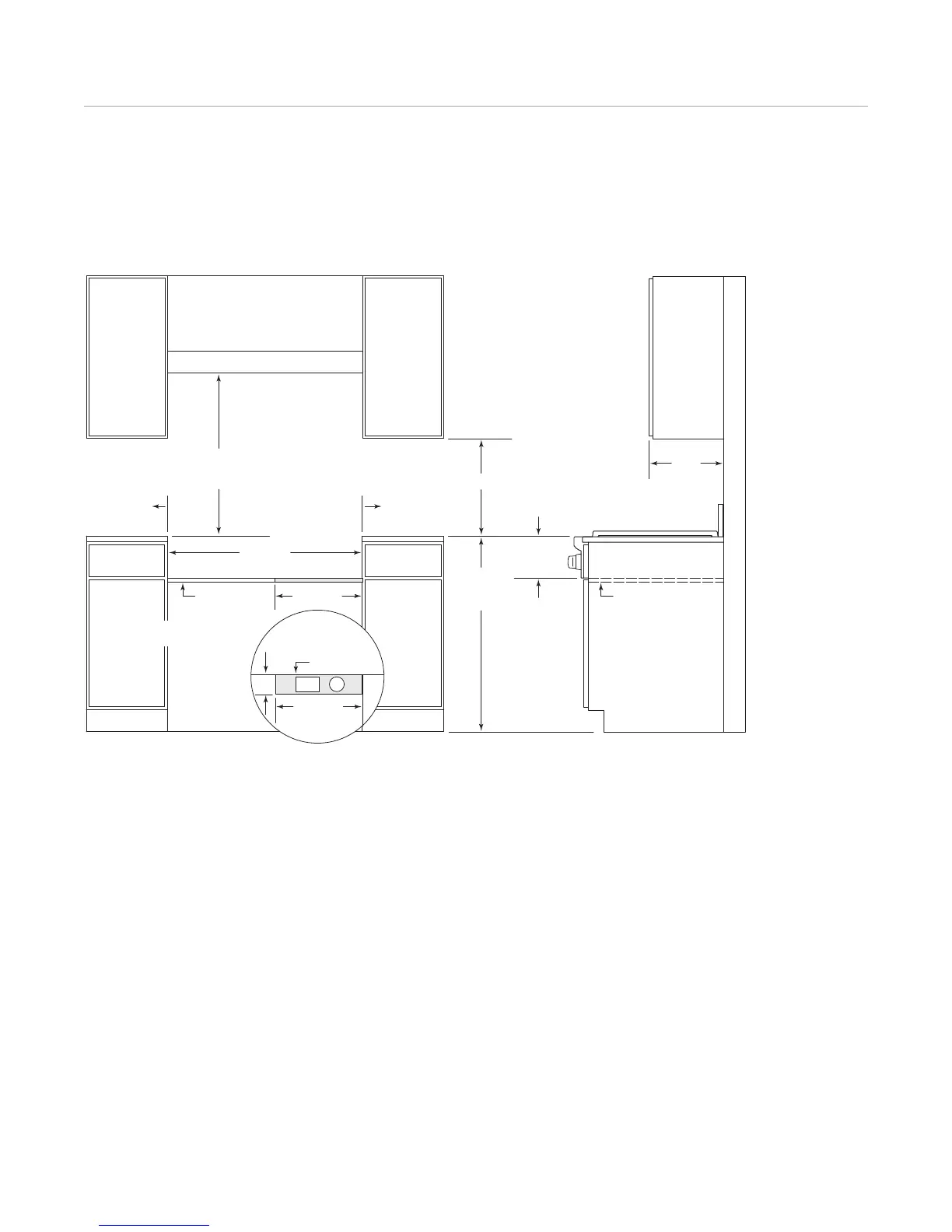
Wolf Sealed Burner Rangetops 50
914 mm
OPENING WIDTH
762 mm TO 914 mm
TO BOTTOM OF
V
ENTILATION HOOD
**
*Minimum clearance from rough opening to combustible materials up to 457 mm above countertop.
**914 mm minimum clearance, 1118 mm for charbroiler, from countertop to combustible materials without ventilation hood.
NOTE: For island installations, 305 mm minimum clearance from back of rangetop to combustible rear wall above countertop.
152 mm T
O
C
OMBUSTIBLE
*
152 mm T
O
C
OMBUSTIBLE
*
457 mm min
914 mm
FLOOR TO
COUNTERTOP
406 mm
PLATFORM
TOP VIEW
E
G
406 mm
102
mm
B
AC
K
WA
LL
GAS AND ELECTRICAL
THROUGH BOTTOM OF
PLATFORM
P
LATFORM
330 mm
m
ax
P
LATFORM
191 mm
OPENING
HEIGHT
914 mm Sealed Burner Rangetop
INSTALLATION

Related product manuals