EasyManua.ls Logo

Wolf ICBCT15E/S - Page 71

Wolf ICBCT15E/S
76 pages
Print Icon
To Next Page IconTo Next Page
To Next Page IconTo Next Page
To Previous Page IconTo Previous Page
To Previous Page IconTo Previous Page
Loading...
Wolf Pro Ventilation 71
wolfappliance.com/specs
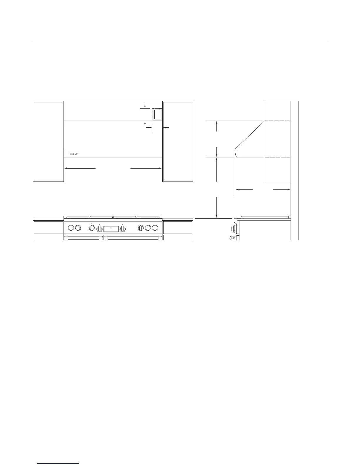
E
1
52
m
m
127
m
m
L
OCATION OF ELECTRICAL
WIDTH OF HOOD
762 mm TO
914 mm
T
O COUNTERTOP
457 mm
H
EIGHT
O
F HOOD
686 mm
DEPTH OF HOOD
686 mm Deep Wall Hood
INSTALLATION

Related product manuals