EasyManua.ls Logo

Wolf ICBDF304 - Page 6

Wolf ICBDF304
20 pages
Print Icon
To Next Page IconTo Next Page
To Next Page IconTo Next Page
To Previous Page IconTo Previous Page
To Previous Page IconTo Previous Page
Loading...
6
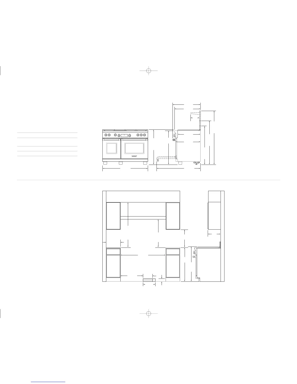
W O L F D U A L F U E L RA N G E S
330 mm
LOCATION OF
ELECTRICAL
914
mm
937 mm
TO
COOKING
SURFACE
VENTILATION HOOD
LOCATION OF GAS AND
ELECTRICAL EXTENDS 76 mm
ON FLOOR FROM BACK WALL
ISLAND INSTALLATIONS: 305 mm MINIMUM
CLEARANCE FROM BACK OF RANGE TO
COMBUSTIBLE REAR WALL ABOVE COUNTERTOP–
1219 mm
FINISHED ROUGH OPENING WIDTH
610 mm
83 mm
254 mm
LOCATION
OF GAS
SUPPLY
457 mm min
TO COUNTERTOP
mm min TO
914 mm max
TO BOTTOM OF
VENTILATION HOOD
600 mm min
COUNTERTOP
TO COMBUSTIBLE
MATERIALS
762 mm min
FOR CHARBROILER
330 mm
max
1216 mm
OVERALL WIDTH
1194 mm
699 mm
235
mm
749 mm
OVERALL DEPTH
LEGS AND CASTERS ALLOW
54 mm HEIGHT ADJUSTMENT
911
mm
937 mm
OVERALL
HEIGHT TO
COOKING
SURFACE
616 mm
641 mm
1064
mm
WITH
127 mm
RISER
1191
mm
WITH
254 mm
RISER
1445
mm
WITH
254 mm
RISER
I N S T A L L A T I O N S P E C I F I C A T I O N S
O V E R A L L D I M E N S I O N S
Overall Width 1216 mm
Overall Height
(to cooking surface) 937 mm
Overall Depth 749 mm
Opening Width 1219 mm
Dimensions may vary to
±
3 mm.
1 2 1 9 mm D U A L F U E L R A N G E S
GC8 44FDBCI
I C B D F 4 8 4 F
C8 64FDBCI
I C B D F 4 8 6 G
IMPORTANT NOTE: In non-island applications, a
minimum 254 mm riser is require d for all 1219 mm
models installed against a combustible surface.
The island trim and 127 mm riser may only be used
against a non-combustible surface.
NOTE
B
Note A:
Side clearances. If the distance
measured from the periphery of the
nearest burner to any vertical surface
is less than 200 mm, the surface shall
be protected in accordance with
AS/NZ5601.
Note B:
The rangehood fitted above the
cooktop must be installed according
to the installation instructions for
the rangehood. A minimum
distance of 750 mm is required for a
range hood and
750 mm for an
exhaust fan
.
NOTE
A
600
50 mm TO NON-COMBUSTIBLE MATERIALS

Other manuals for Wolf ICBDF304

Related product manuals