EasyManua.ls Logo

Wolf ICBIS15/S - Page 32

Wolf ICBIS15/S
76 pages
Print Icon
To Next Page IconTo Next Page
To Next Page IconTo Next Page
To Previous Page IconTo Previous Page
To Previous Page IconTo Previous Page
Loading...
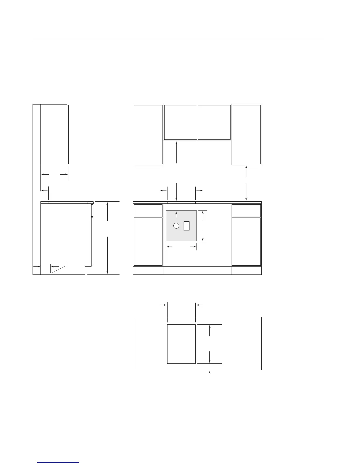
Wolf Gas Cooktops 32
914 mm
FLOOR TO
COUNTERTOP
762 mm
min
COUNTERTOP
T
O COMBUSTIBLE
M
ATERIALS
S
EE COUNTERTOP
C
UT-OUT BELOW
356 mm
CUT-OUT
WIDTH
COUNTERTOP CUT-OUT
FRONT
489 mm
CUT-OUT
DEPTH
64 mm min
178 mm T
O
C
OMBUSTIBLE
*
178 mm T
O
C
OMBUSTIBLE
*
S
IDE
C
ABINET
3
30 mm
max
*Minimum clearance from cooktop cut-out to combustible materials up to 457 mm above countertop.
NOTE: Application shown allows for installation of two 381 mm modules side by side.
E
381 mm
381
mm
102 mm
457 mm min
127
mm
LOCATION OF GAS
AND ELECTRICAL
EXTENDS ON FLOOR
G
64
mm*
381 mm Gas Cooktop
STANDARD INSTALLATION

Related product manuals