EasyManua.ls Logo

Wolf ICBIS15/S - Page 34

Wolf ICBIS15/S
76 pages
Print Icon
To Next Page IconTo Next Page
To Next Page IconTo Next Page
To Previous Page IconTo Previous Page
To Previous Page IconTo Previous Page
Loading...
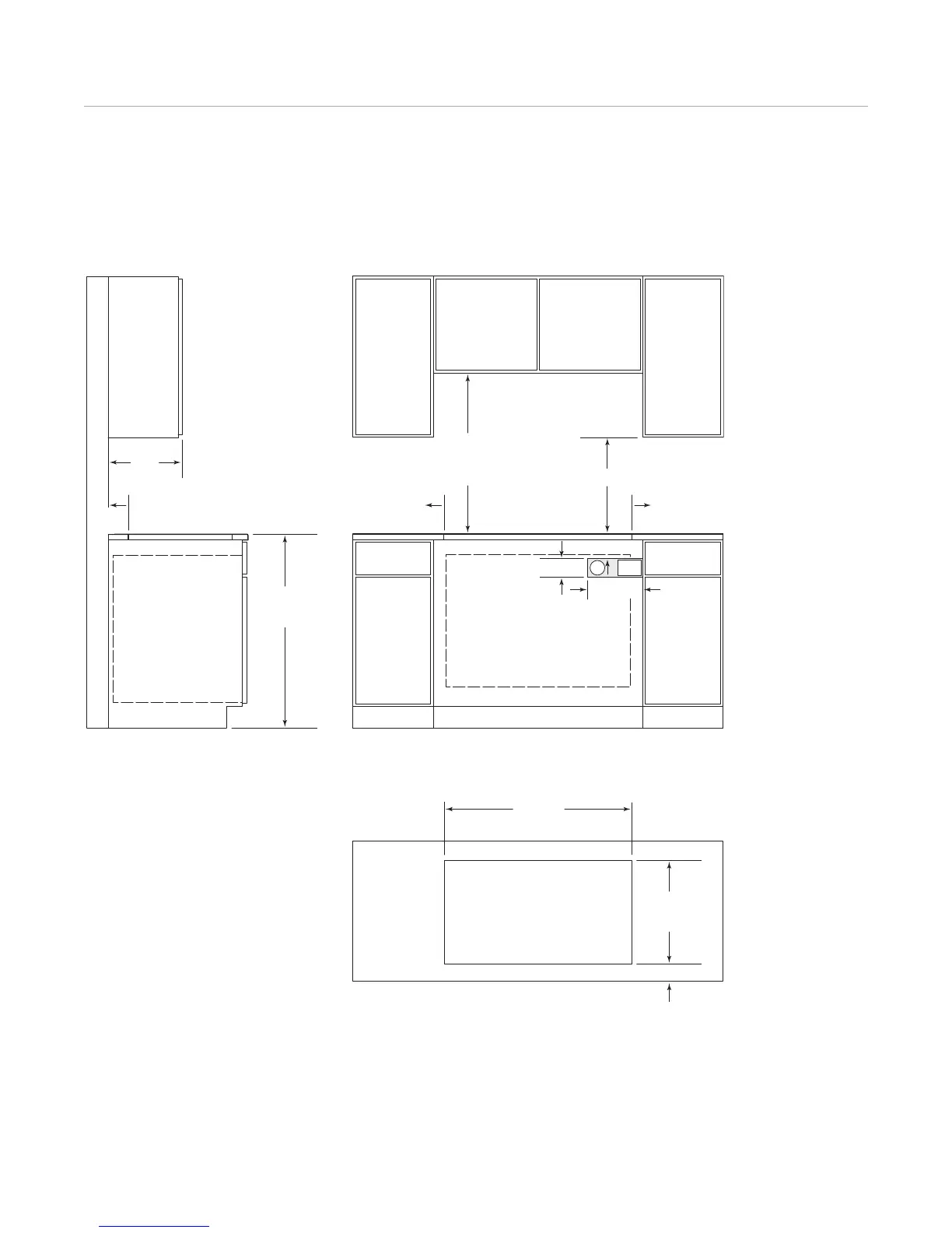
Wolf Gas Cooktops 34
102 mm
E
G
457 mm min
914 mm
FLOOR TO
COUNTERTOP
762 mm min
COUNTERTOP
T
O COMBUSTIBLE
M
ATERIALS
914 mm OVEN OPENING
254 mm
89 mm
S
EE COUNTERTOP
CUT-OUT BELOW
889 mm
CUT-OUT WIDTH
COUNTERTOP CUT-OUT
FRONT
489 mm
CUT-OUT
DEPTH
64 mm min
229 mm TO
COMBUSTIBLE
*
229 mm TO
COMBUSTIBLE
*
S
IDE
C
ABINET
3
30 mm
max
*Minimum clearance from cooktop cut-out to combustible materials up to 457 mm above countertop.
NOTE: Gas and electrical location applies only to installation with built-in oven.
64
mm*
914 mm Gas Cooktop
STANDARD INSTALLATION

Related product manuals