EasyManua.ls Logo

Wolf ICBIS15/S - Page 40

Wolf ICBIS15/S
76 pages
Print Icon
To Next Page IconTo Next Page
To Next Page IconTo Next Page
To Previous Page IconTo Previous Page
To Previous Page IconTo Previous Page
Loading...
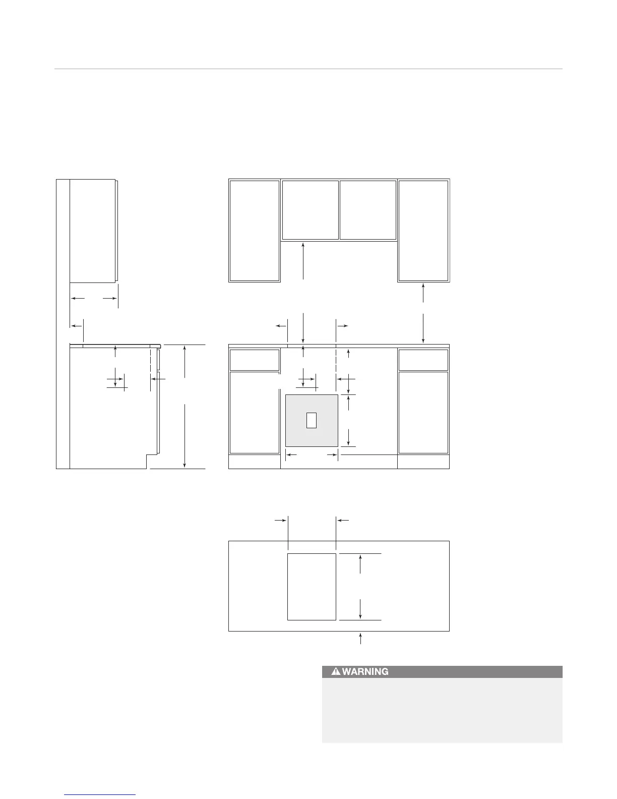
Wolf Integrated Modules 40
E
381 mm
381
mm
314 mm
194
mm
DRAIN
OUTLET
343
mm
314 mm
152
mm
914 mm
FLOOR TO
COUNTERTOP
762 mm min
COUNTERTOP
TO COMBUSTIBLE
MATERIALS
SEE COUNTERTOP
CUT-OUT BELOW
356 mm
CUT-OUT
WIDTH
COUNTERTOP CUT-OUT
FRONT
489 mm
CUT-OUT
DEPTH
64 mm min
178 mm TO
COMBUSTIBLE*
178 mm TO
COMBUSTIBLE*
51
mm*
SIDE
CABINET
3
30 mm
m
ax
*Minimum clearance from cooktop cut-out to combustible materials up to 457 mm above countertop.
NOTE: Fryer module must be installed in base cabinet with access to valve at bottom of unit to drain oil into heat-resistant receptacle.
Application shown allows for installation of two 381 mm modules side by side.
457 mm min
DRAIN
OUTLET
Electric Fryer
STANDARD INSTALLATION
DRAIN CONNECTION
The fryer module must be installed in a base cabinet with
access to the manual valve at the bottom of the unit to
drain oil into a heat-resistant receptacle.
The fryer module must be installed at least 381 mm
from any open-flame cooking device or a Wolf steamer
module. The open flame may cause ignition of oil, and
contact between water and hot oil may cause burns.

Related product manuals