EasyManua.ls Logo

Wolf ICBIS15/S - Page 45

Wolf ICBIS15/S
76 pages
Print Icon
To Next Page IconTo Next Page
To Next Page IconTo Next Page
To Previous Page IconTo Previous Page
To Previous Page IconTo Previous Page
Loading...
Wolf Dual Fuel Ranges 45
wolfappliance.com/specs
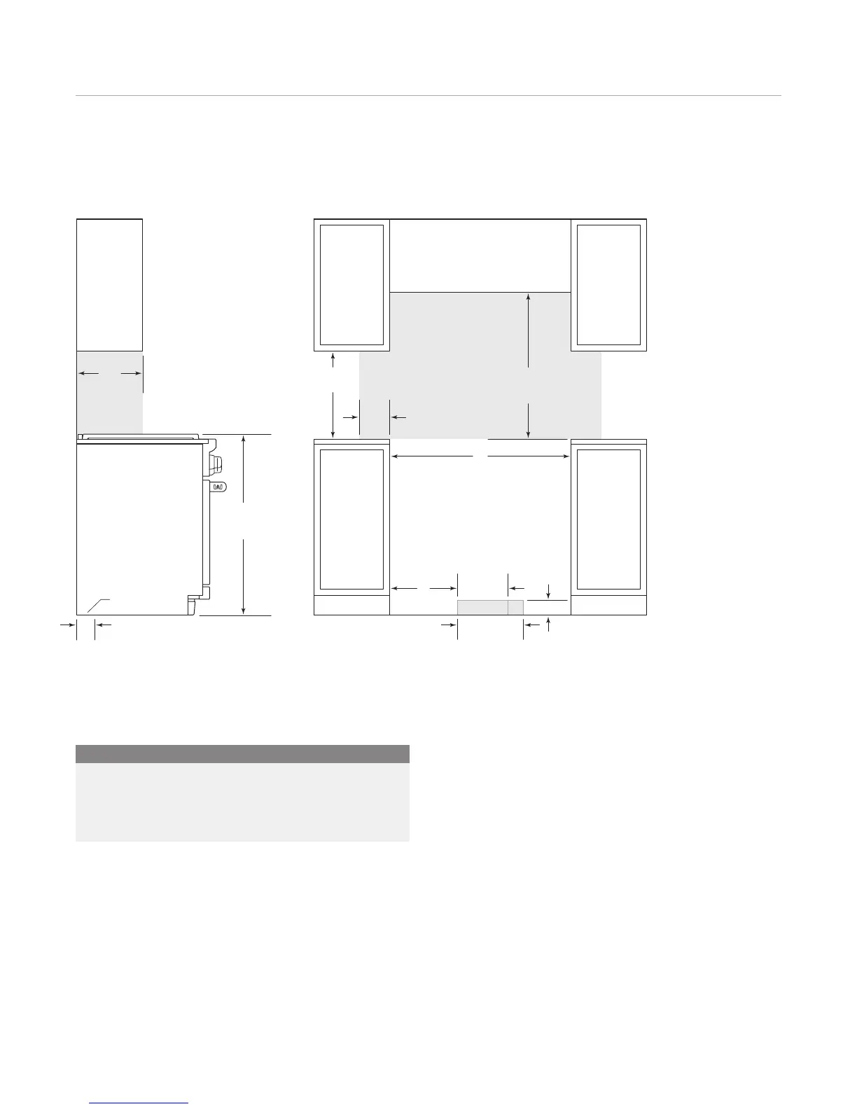
FRONT VIEWSIDE VIEW
*Without ventilation hood, 914 mm minimum clearance countertop to combustible materials, 118 mm for charbroiler.
NOTE: Shaded area above countertop indicates minimum clearance to combustible surfaces,
combustible materials cannot be located within this area.
For island installation, 305 mm
minimum clearance back of range to combustible rear wall above countertop.
330
mm
457
mm
152
mm
57 mm
LOCATION OF GAS AND
ELECTRICAL EXTENDS
ON FLOOR
A
83 mm
254 mm
GAS
330 mm
ELECTRICAL
937 mm
TO COOKING
S
URFACE
W
OPENING WIDTH
762 mm TO 914 mm
TO BOTTOM OF
VENTILATION HOOD*
G E
Installation
Dual Fuel Range
WIDTH WA
762 mm Range 762 mm 216 mm
914 mm Range 914 mm 343 mm
1219 mm Range 1219 mm 610 mm
1524 mm Range 1530 mm 787 mm

Related product manuals