EasyManua.ls Logo

Wolf ICBIS15/S - Page 55

Wolf ICBIS15/S
76 pages
Print Icon
To Next Page IconTo Next Page
To Next Page IconTo Next Page
To Previous Page IconTo Previous Page
To Previous Page IconTo Previous Page
Loading...
Wolf Gas Ranges 55
wolfappliance.com/specs
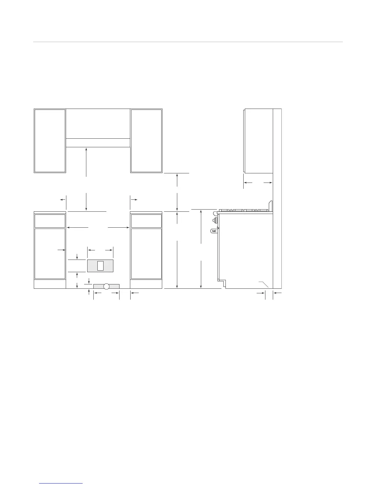
768 mm
O
PENING WIDTH
762 mm T
O
914 mm
T
O BOTTOM OF
VENTILATION HOOD
**
*Minimum clearance from rough opening to combustible materials up to 457 mm above countertop.
**914 mm minimum clearance from countertop to combustible materials without ventilation hood.
NOTE: For island installations, 305 mm minimum clearance from back of range to combustible rear wall above countertop.
152 mm TO
COMBUSTIBLE*
152 mm TO
COMBUSTIBLE*
457 mm
min
914 mm
F
LOOR TO
COUNTERTOP
305
mm
127
mm
G
51 mm
940 mm
TO COOKING
SURFACE
330 mm
m
ax
76
mm
LOCATION OF GAS AND
ELECTRICAL EXTENDS
ON FLOOR
SIDE
CABINET
305
mm
254 mm
E
197 mm
146
mm
762 mm Gas Range
INSTALLATION

Related product manuals