EasyManua.ls Logo

Wolf ICBIS15/S - Page 70

Wolf ICBIS15/S
76 pages
Print Icon
To Next Page IconTo Next Page
To Next Page IconTo Next Page
To Previous Page IconTo Previous Page
To Previous Page IconTo Previous Page
Loading...
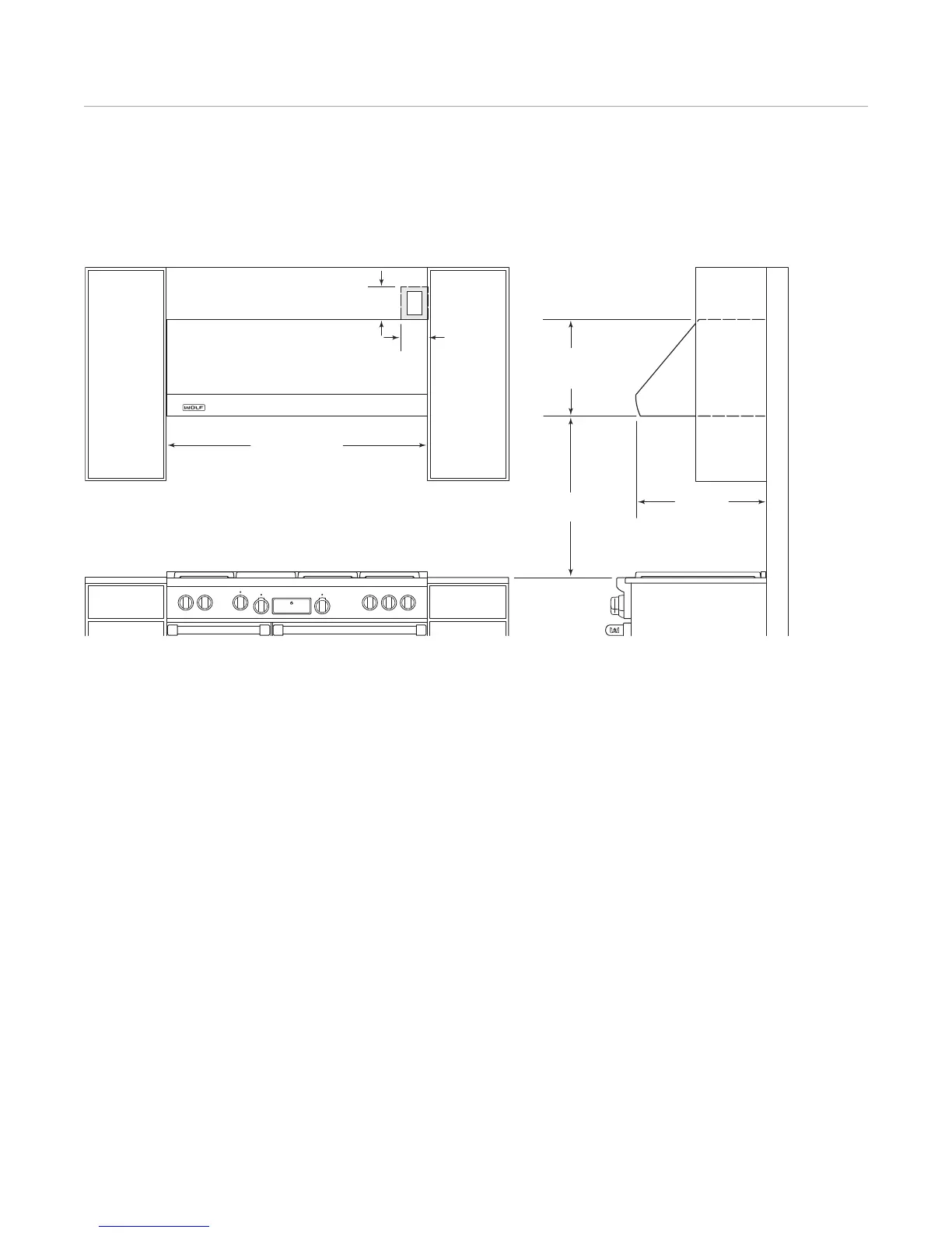
Wolf Pro Ventilation 70
E
1
52
m
m
127
m
m
L
OCATION OF ELECTRICAL
WIDTH OF HOOD
762 mm TO 914 mm
T
O COUNTERTOP
457 mm
H
EIGHT
O
F HOOD
610 mm
DEPTH OF HOOD
610 mm Deep Wall Hood
INSTALLATION

Related product manuals